Проект одноэтажного дома Варшава-188-90-Б
Дом подходит для:
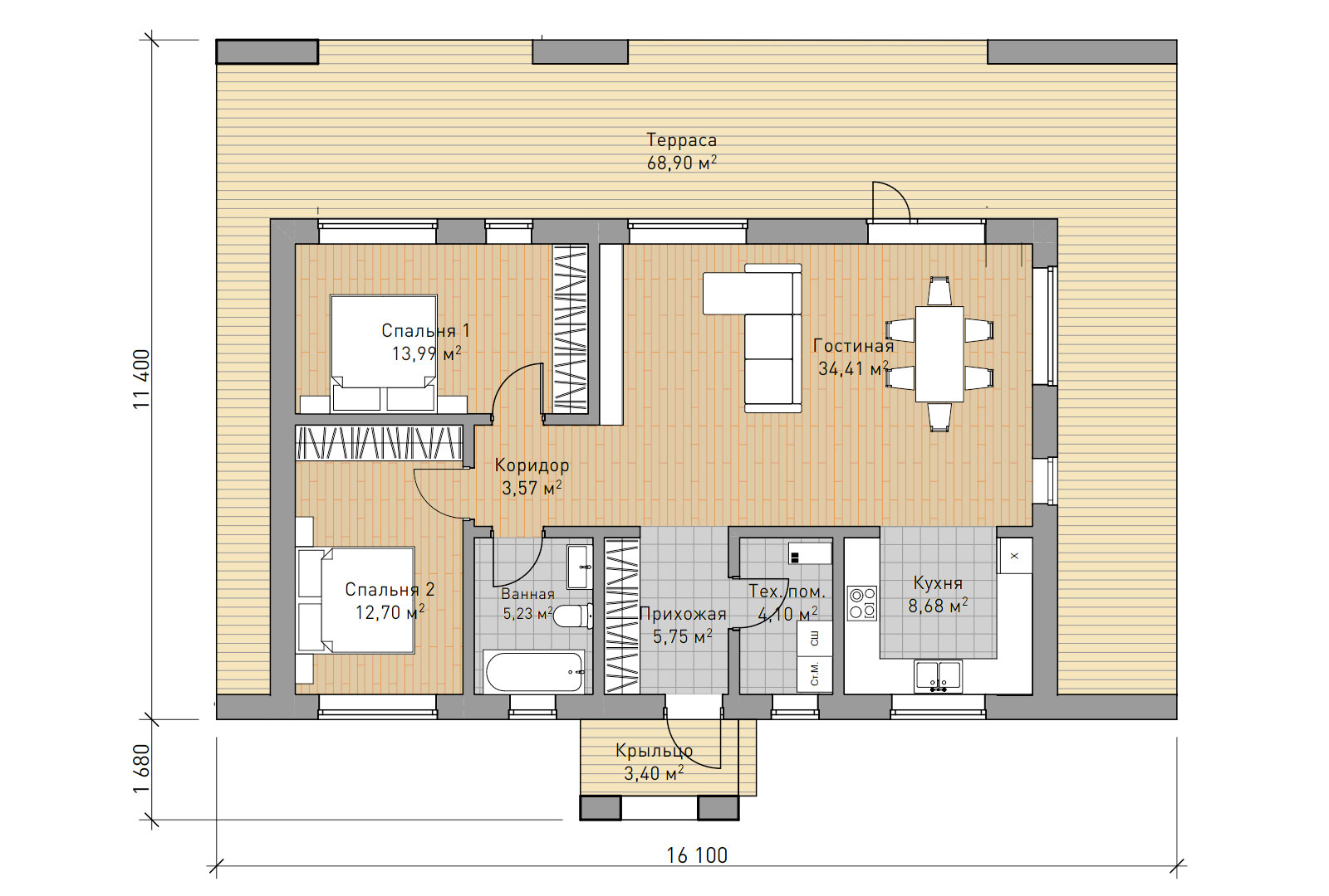
Площадь
162 м 2
Размер дома:
16,1х11,4
Этажей:
1
Спален:
2
Санузел:
1
Гараж:
Нет
Баня:
Нет
Терраса:
Да
Панорамные окна:
Нет
Мастер-спальня:
Нет
Планировка
Характеристики
- Общая площадь: 162 м2
- Жилая площадь: 88 м2
- Количество этажей: 1
- Гараж: нет
- Площадь кровли: 165 м2
- Стиль, разновидность: Дома в стиле Барнхаус
- Форма: Квадратные дома
- Тип кровли: Дома с двускатной крышей
- Пристрой: Дома с террасой
- Отделка: С черновой отделкой
- Отделка фасада: Дома с отделкой металлическим сайдингом
- Фундамент: Дома с ленточным фундаментом
- Класс дома: Дома класса Стандарт
Материалы и перечень работ
- Монолитный железобетонный ленточный фундамент
- Крупноформатные LEGO-блоки (шип&паз) из полистиролбетона
- Пустотное бетонное перекрытие
- Стальная фальцевая кровля
- Окна ПВХ
- В стоимость не входит
- Кликфальц
- Монолитный железобетонный ленточный фундамент
- Крупноформатные LEGO-блоки (шип&паз) из полистиролбетона
- Пустотное бетонное перекрытие
- Стальная фальцевая кровля
- Окна ПВХ
- В стоимость не входит
- Кликфальц
Что еще входит в стоимость:
Отправьте свои контакты и мы расчитаем вам смету
Скорее всего вам подойдут следующие проекты домов:
Проект одноэтажного дома Вена-120-114
Семья с двумя детьми
Дом подходит для:
Дом подходит для:
Проект одноэтажного дома Берлин-120-114-Б
Семья с двумя детьми
Дом подходит для:
Дом подходит для:
Проект одноэтажного дома Лейпциг-120-114-С
Семья с двумя детьми
Дом подходит для:
Дом подходит для:













