Проект одноэтажного дома Вельга 216
Дом подходит для:
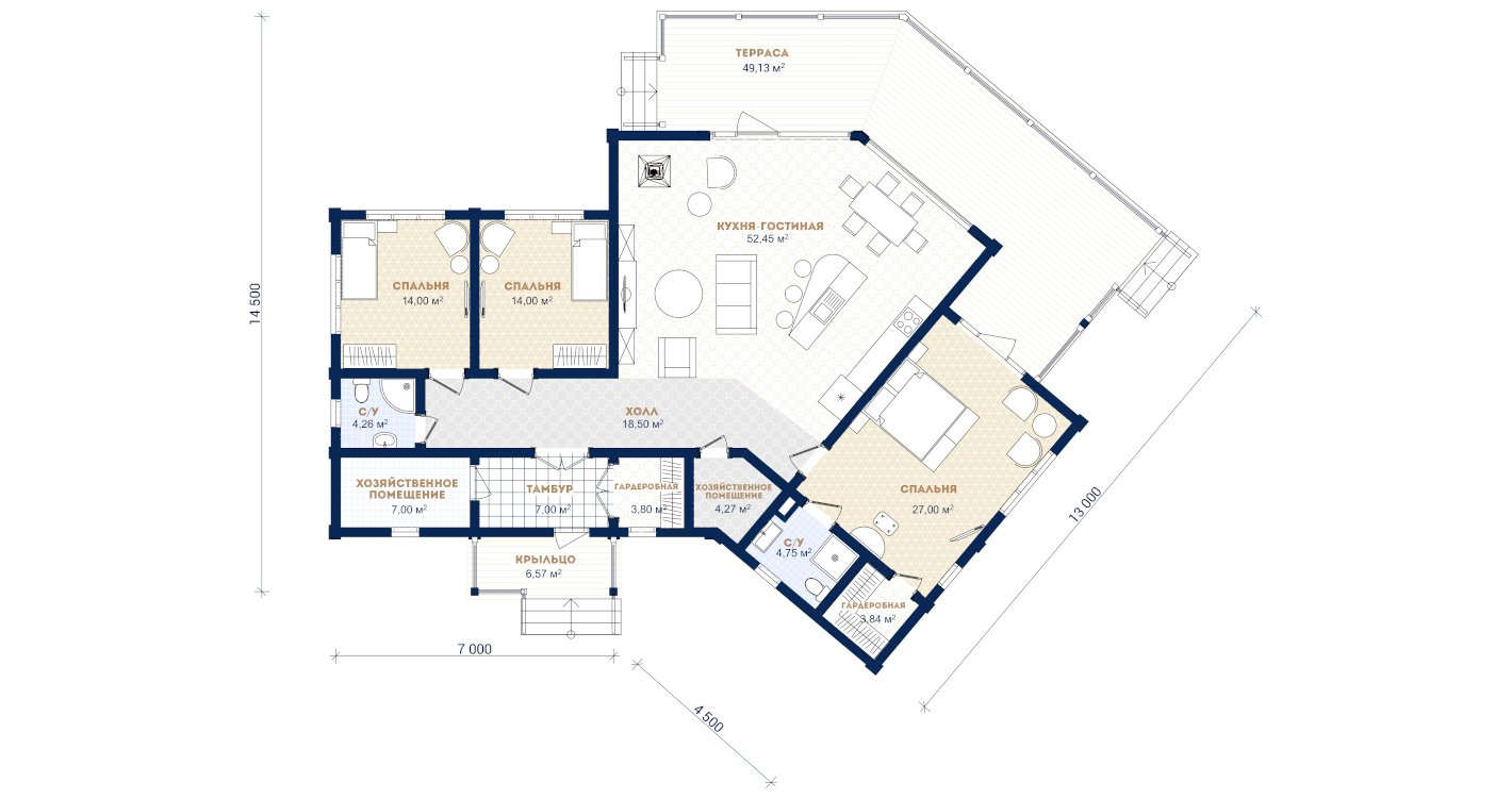
Площадь
216 м 2
Размер дома:
14,5х7х4
Этажей:
1
Спален:
3
Санузел:
2
Гараж:
Нет
Баня:
Нет
Терраса:
Нет
Панорамные окна:
Нет
Мастер-спальня:
Нет
Планировка
Характеристики
- Общая площадь: 216 м2
- Жилая площадь: 160 м2
- Количество этажей: 1
- Гараж: нет
- Площадь кровли: 220 м2
- Отделка: Без отделки
Материалы и перечень работ
- Вариативный
- Детали из клееного бруса для устройства стен дома со всеми необходимыми запилами и технологическими отверстиями;
- Элементы каркасных перегородок для устройства внутренних стен дома;
- Межвенцовый уплотнитель;
- Чашечный уплотнитель;
- Нагели деревянные;
- Стропила с шагом 500 мм;
- Вентиляционный брусок;
- Брусок пароизоляции;
- Брусок смены направления под дополнительное утепление;
- Обрешетка с шагом 250 мм под сплошной настил кровли;
- Комплект наличников и декоративных элементов на окна и двери;
- Доборные элементы;
- Метизы;
- В стоимость не входит
- Клееные столбы;
- Клееные балки;
- Клееная обвязка террас и крылец;
- Метизы крепления балок и столбов;
- Вариативный
- Детали из клееного бруса для устройства стен дома со всеми необходимыми запилами и технологическими отверстиями;
- Элементы каркасных перегородок для устройства внутренних стен дома;
- Межвенцовый уплотнитель;
- Чашечный уплотнитель;
- Нагели деревянные;
- Стропила с шагом 500 мм;
- Вентиляционный брусок;
- Брусок пароизоляции;
- Брусок смены направления под дополнительное утепление;
- Обрешетка с шагом 250 мм под сплошной настил кровли;
- Комплект наличников и декоративных элементов на окна и двери;
- Доборные элементы;
- Метизы;
- В стоимость не входит
- Клееные столбы;
- Клееные балки;
- Клееная обвязка террас и крылец;
- Метизы крепления балок и столбов;
Что еще входит в стоимость:
Отправьте свои контакты и мы расчитаем вам смету
Скорее всего вам подойдут следующие проекты домов:
Дом подходит для:
Проект одноэтажного дома Алиот
Семья с двумя детьми
Дом подходит для:
Дом подходит для:






