Проект одноэтажного дома Вена
Дом подходит для:
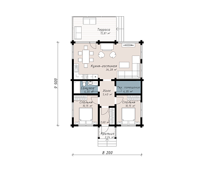
Площадь
91 м 2
Размер дома:
8x10
Этажей:
1
Спален:
2
Санузел:
2
Гараж:
Нет
Баня:
Нет
Терраса:
Нет
Панорамные окна:
Нет
Мастер-спальня:
Нет
Планировка
Характеристики
- Общая площадь: 91 м2
- Жилая площадь: 72 м2
- Количество этажей: 1
- Гараж: нет
- Площадь кровли: 95 м2
- Отделка: Без отделки
- Размер: 8x10
Материалы и перечень работ
- Гидроизоляция фундамента
- Стеновой элемент ( клееный профилированный брус) сечением 200х292 мм. Профиль
- Подкладная доска под первый венец ( лиственница сечением 50*200/150 мм)
- Стропильная система из клееных балок (сечение по проекту)
- Лаги и балки межэтажных перекрытий (сечение по проекту)
- Кровельная мембрана Delta или Rothoblaas
- Контробрешетка (сухая строганная хвойных пород, сечение по проекту)
- Металлочерепица* Grand Line или мягкая черепица Katepa. *комплект согласно проекту — кровельное покрытие, коньковый элемент, карнизная планка, планка примыкания, снегозадержание
- Металлопластикоые окна и балконные двери VEKA\ Rehau
- Вентиляционные выходы Vilpe
- Обработка торцов бруса защитным составом JRM Teknos
- Обсадная доска и брусок на оконные и дверные проемы (доска сухая строганная либо фанера, сечение по проекту)
- Гидроизоляция фундамента
- Стеновой элемент ( клееный профилированный брус) сечением 200х292 мм. Профиль
- Подкладная доска под первый венец ( лиственница сечением 50*200/150 мм)
- Стропильная система из клееных балок (сечение по проекту)
- Лаги и балки межэтажных перекрытий (сечение по проекту)
- Кровельная мембрана Delta или Rothoblaas
- Контробрешетка (сухая строганная хвойных пород, сечение по проекту)
- Металлочерепица* Grand Line или мягкая черепица Katepa. *комплект согласно проекту — кровельное покрытие, коньковый элемент, карнизная планка, планка примыкания, снегозадержание
- Металлопластикоые окна и балконные двери VEKA\ Rehau
- Вентиляционные выходы Vilpe
- Обработка торцов бруса защитным составом JRM Teknos
- Обсадная доска и брусок на оконные и дверные проемы (доска сухая строганная либо фанера, сечение по проекту)
Что еще входит в стоимость:
Отправьте свои контакты и мы расчитаем вам смету
Скорее всего вам подойдут следующие проекты домов:
Дом подходит для:
Дом подходит для:
Проект одноэтажного дома Одноэтажный дачный дом из двойного бруса «Лапландия»
Семья с одним ребенком
Дом подходит для:
Дом подходит для:












