Проект одноэтажного дома Верхогорье
Дом подходит для:
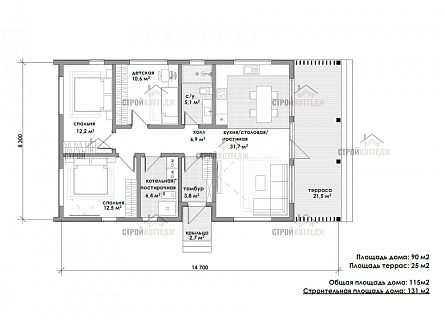
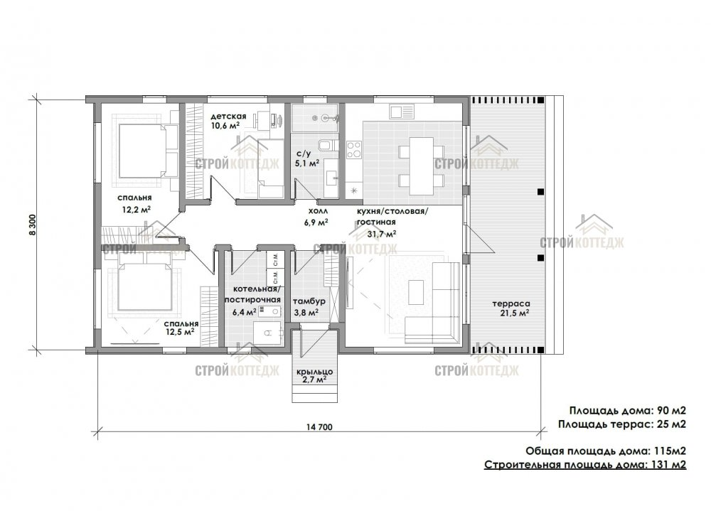
Площадь
131 м 2
Размер дома:
8,3х14,7
Этажей:
1
Спален:
3
Санузел:
1
Гараж:
Нет
Баня:
Нет
Терраса:
Нет
Панорамные окна:
Нет
Мастер-спальня:
Нет
Планировка
Характеристики
- Общая площадь: 131 м2
- Жилая площадь: 90 м2
- Количество этажей: 1
- Гараж: нет
- Площадь кровли: 135 м2
- Отделка: Без отделки
- Фундамент: Дома со свайным фундаментом
Материалы и перечень работ
- Сваи армированные 150х150 – 3000 мм;
- Все геодезические и земляные работы
- Клееные колонны 200\200 мм
- Доска сухая строганая Гост
- Утеплитель rockwool 150 мм
- Шумоизоляция 100 мм
- Обработка древесины антисептик neomid
- Стропильная система, доска сухая строганная
- Обработка антисептиком neomid
- Кровля металлочерепица
- Утепление rockwool 200 мм
- Гидроизоляция, пароизоляция и ветроизоляция
- Обсадные коробки, крашенная доска 20х90 мм (доборные элементы)
- Окна REHAU с 2-х камерным стеклопакетом и ламинацией (3 стекла) - профиль - 60 мм
- Подоконники согласовываются индивидуально
- В стоимость не входит
- Внешняя отделка имитацией бруса
- Сваи армированные 150х150 – 3000 мм;
- Все геодезические и земляные работы
- Клееные колонны 200\200 мм
- Доска сухая строганая Гост
- Утеплитель rockwool 150 мм
- Шумоизоляция 100 мм
- Обработка древесины антисептик neomid
- Стропильная система, доска сухая строганная
- Обработка антисептиком neomid
- Кровля металлочерепица
- Утепление rockwool 200 мм
- Гидроизоляция, пароизоляция и ветроизоляция
- Обсадные коробки, крашенная доска 20х90 мм (доборные элементы)
- Окна REHAU с 2-х камерным стеклопакетом и ламинацией (3 стекла) - профиль - 60 мм
- Подоконники согласовываются индивидуально
- В стоимость не входит
- Внешняя отделка имитацией бруса
Что еще входит в стоимость:
Отправьте свои контакты и мы расчитаем вам смету
Скорее всего вам подойдут следующие проекты домов:
Дом подходит для:
Дом подходит для:
Дом подходит для:













