Проект двухэтажного дома Верный
Дом подходит для:
Площадь
120 м 2
Размер дома:
8,6х7,5
Этажей:
2
Спален:
4
Санузел:
3
Гараж:
Нет
Баня:
Нет
Терраса:
Нет
Панорамные окна:
Нет
Мастер-спальня:
Нет
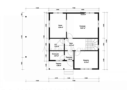
Планировка
Фасады
О проекте
Просторный дом площадью 120 м² с жилыми 94 м² создан для комфортной жизни большой семьи. Брусовая конструкция обеспечивает надежность и тепло, а удобная планировка делает пространство функциональным. Светлые интерьеры наполнены уютом, а натуральные материалы добавляют гармонии. Здесь каждый день наполнен спокойствием.Характеристики
- Общая площадь: 120 м2
- Жилая площадь: 94 м2
- Количество этажей: 2
- Гараж: нет
- Площадь кровли: 126 м2
- Отделка: Без отделки
- Фундамент: Дома со свайно-винтовым фундаментом
Материалы и перечень работ
- Свайно-винтовой 108х2500мм
- Основание брус 140х140мм первый сорт гост сухой строганный
- Каркас доска 190х45мм\195х45мм
- Огнезащита основания дома биозелест/неомид
- Ветровлагозащита\пароизоляция ondutiss
- Утепление 200мм izobel или аналог(+-25кг на м2)
- Отделка внутри имитация бруса 140/16
- Кровельное покрытие S 0.45мм
- Двери межкомнатные artens( улучшенные мдф)
- Входная дверь металлическая
- Окна ПВХ brusbox 70-й профиль
- В стоимость не входит
- Отделка снаружи имитация бруса 140/16/виниловый сайдинг технониколь по osb-9mm
- Свайно-винтовой 108х2500мм
- Основание брус 140х140мм первый сорт гост сухой строганный
- Каркас доска 190х45мм\195х45мм
- Огнезащита основания дома биозелест/неомид
- Ветровлагозащита\пароизоляция ondutiss
- Утепление 200мм izobel или аналог(+-25кг на м2)
- Отделка внутри имитация бруса 140/16
- Кровельное покрытие S 0.45мм
- Двери межкомнатные artens( улучшенные мдф)
- Входная дверь металлическая
- Окна ПВХ brusbox 70-й профиль
- В стоимость не входит
- Отделка снаружи имитация бруса 140/16/виниловый сайдинг технониколь по osb-9mm
Что еще входит в стоимость:
Отправьте свои контакты и мы расчитаем вам смету
Скорее всего вам подойдут следующие проекты домов:
Дом подходит для:
Дом подходит для:
Дом подходит для:












