Проект одноэтажного дома Витебск
Дом подходит для:
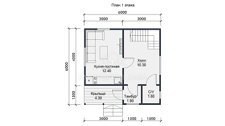
Площадь
72 м 2
Размер дома:
6x6
Этажей:
1
Спален:
2
Санузел:
1
Гараж:
Нет
Баня:
Нет
Терраса:
Нет
Панорамные окна:
Нет
Мастер-спальня:
Нет
Планировка
Характеристики
- Общая площадь: 72 м2
- Жилая площадь: 51 м2
- Количество этажей: 1
- Гараж: нет
- Площадь кровли: 86 м2
- Форма: Квадратные дома
- Тип кровли: Дома с двускатной крышей
- Пристрой: Дома с балконом
- Отделка: Без отделки
- Размер: 6x6
Материалы и перечень работ
- В стоимость не входит
- Основание Одинарное, из обрезного не строганного бруса, е/в хвойных пород (ель, сосна). d-100х150мм; 150х150мм; 200х150мм, зависит от того, из какого бруса будет собираться дом.
- Половые лаги Усиленные, из обрезного не строганного бруса d-40х150 мм, е/в (на ребро), с шагом не более 600мм.
- Стены первого этажа Профилированный брус, е/в, вид блок-хаус или прямой (на стоимость цены не влияет), внутри строганный ровно. Брус уложен в паз-шип d-90х140(h)мм; 140х140(h)мм; 190х140(h)мм, зависит от того, из какого бруса будет собираться дом.
- Перегородки первого этажа Выполняются Из профилированного бруса е/в, d-90х140(h)мм. (140х140мм; 190х140мм, рассчитываются за дополнительную плату). Вид «Прямой».
- Черновой пол Обрезная доска 22-25 мм, е/в, укладывается на черепной брусок 50х40 мм, прикреплённый к лагам.
- Подстропильные балки (Перекрытия 1-го этажа) Подстропильные балки с бруска 40х150мм, е/в, с шагом не более 600мм.
- Стропила Собираются с бруска 40х100мм, е/в (40х150мм, зависит от размера дома), с шагом не более 600 мм
- Вынос крыши по периметру 400 мм, подшит вагонкой принудительной сушки.
- Кровля «Ондулин» (красный, зеленый, коричневый – на выбор «Заказчика»). Возможна замена на проф. лист, метало-черепицу и т.д, за дополнительную плату.
- Окна Выполняются проёмы согласно проекта, с обязательной перевязкой брусом.
- Двери Выполняются проёмы согласно проекта, с обязательной перевязкой брусом.
- В стоимость не входит
- В стоимость не входит
- В стоимость не входит
- Основание Одинарное, из обрезного не строганного бруса, е/в хвойных пород (ель, сосна). d-100х150мм; 150х150мм; 200х150мм, зависит от того, из какого бруса будет собираться дом.
- Половые лаги Усиленные, из обрезного не строганного бруса d-40х150 мм, е/в (на ребро), с шагом не более 600мм.
- Стены первого этажа Профилированный брус, е/в, вид блок-хаус или прямой (на стоимость цены не влияет), внутри строганный ровно. Брус уложен в паз-шип d-90х140(h)мм; 140х140(h)мм; 190х140(h)мм, зависит от того, из какого бруса будет собираться дом.
- Перегородки первого этажа Выполняются Из профилированного бруса е/в, d-90х140(h)мм. (140х140мм; 190х140мм, рассчитываются за дополнительную плату). Вид «Прямой».
- Черновой пол Обрезная доска 22-25 мм, е/в, укладывается на черепной брусок 50х40 мм, прикреплённый к лагам.
- Подстропильные балки (Перекрытия 1-го этажа) Подстропильные балки с бруска 40х150мм, е/в, с шагом не более 600мм.
- Стропила Собираются с бруска 40х100мм, е/в (40х150мм, зависит от размера дома), с шагом не более 600 мм
- Вынос крыши по периметру 400 мм, подшит вагонкой принудительной сушки.
- Кровля «Ондулин» (красный, зеленый, коричневый – на выбор «Заказчика»). Возможна замена на проф. лист, метало-черепицу и т.д, за дополнительную плату.
- Окна Выполняются проёмы согласно проекта, с обязательной перевязкой брусом.
- Двери Выполняются проёмы согласно проекта, с обязательной перевязкой брусом.
- В стоимость не входит
- В стоимость не входит














