Проект одноэтажного дома Вологда
Площадь
81 м 2
Размер дома:
10x9
Этажей:
1
Спален:
3
Санузел:
0
Гараж:
Нет
Баня:
Нет
Терраса:
Нет
Панорамные окна:
Нет
Мастер-спальня:
Нет
О проекте
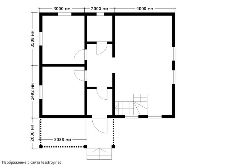
Архитектура, которая учитывает особенности местного климата. 81 м² открывают свободу для жизни без компромиссов. Архитектура выполнена в стиле финские дома. Стены из Каркас хорошо держат тепло и защищают от шума. Наличие 3 спальни удовлетворит запросы семьи с детьми.Характеристики
- Общая площадь: 81 м2
- Количество этажей: 1
- Стиль, разновидность: Финские дома
- Форма: Г-образные дома
- Тип кровли: Дома с иной крышей
- Отделка: Без отделки
- Размер: 10x9
Отправьте свои контакты и мы расчитаем вам смету
Скорее всего вам подойдут следующие проекты домов:
Дом подходит для:
Дом подходит для:
Дом подходит для:












