Проект одноэтажного дома Woodhouse 90 Pro
Дом подходит для:
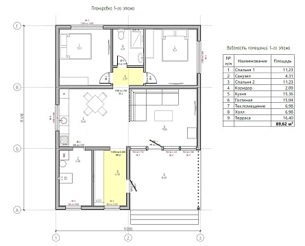
Площадь
90 м 2
Размер дома:
11.4х9
Этажей:
1
Спален:
2
Санузел:
1
Гараж:
Нет
Баня:
Нет
Терраса:
Да
Панорамные окна:
Нет
Мастер-спальня:
Нет
Планировка
Характеристики
- Общая площадь: 90 м2
- Жилая площадь: 63 м2
- Количество этажей: 1
- Гараж: нет
- Площадь кровли: 152 м2
- Стиль, разновидность: Модульные дома
- Форма: Квадратные дома
- Тип кровли: Дома с двускатной крышей
- Пристрой: Дома с верандой
- Отделка: Под ключ
- Фундамент: Дома со свайным фундаментом
Материалы и перечень работ
- Установка свайно-забивного фундамента (с использованием обвязочного бруса)
- Сборка и подготовка дома
- Система инфракрасного теплого пола во всех санузлах
- Черновая/чистовая покраска отделочных материалов составами и пропитками мировых брендов
- Ламинат 12мм, класс износостойкости 33
- Вариативная
- Двери: входные и межкомнатные
- Окна ПВХ REHAU, двухкамерный стеклопакет, пяти-камерный профиль
- Отопление: конвекторы с терморегуляторами
- Подключение к внешним инженерным системам
- Светильники внешние и внутренние, розетки, выключатели
- Водоподготовка системы отопления с выводом для электрического котла
- Все коммуникации: электрическая разводка, водоснабжение, канализация, рекуперация и вентиляция внутри дома.
- Утепление по периметру, толщина стен 150 мм, пол и кровля 200 мм
- Установка свайно-забивного фундамента (с использованием обвязочного бруса)
- Сборка и подготовка дома
- Система инфракрасного теплого пола во всех санузлах
- Черновая/чистовая покраска отделочных материалов составами и пропитками мировых брендов
- Ламинат 12мм, класс износостойкости 33
- Вариативная
- Двери: входные и межкомнатные
- Окна ПВХ REHAU, двухкамерный стеклопакет, пяти-камерный профиль
- Отопление: конвекторы с терморегуляторами
- Подключение к внешним инженерным системам
- Светильники внешние и внутренние, розетки, выключатели
- Водоподготовка системы отопления с выводом для электрического котла
- Все коммуникации: электрическая разводка, водоснабжение, канализация, рекуперация и вентиляция внутри дома.
- Утепление по периметру, толщина стен 150 мм, пол и кровля 200 мм
Что еще входит в стоимость:
Отправьте свои контакты и мы расчитаем вам смету
Скорее всего вам подойдут следующие проекты домов:
Дом подходит для:
Проект одноэтажного дома Cube 85
Семья с одним ребенком
Дом подходит для:
Дом подходит для:
Проект одноэтажного дома Калибан
Семья с двумя детьми
Дом подходит для:
Дом подходит для:












