Проект одноэтажного дома Якутск
Дом подходит для:
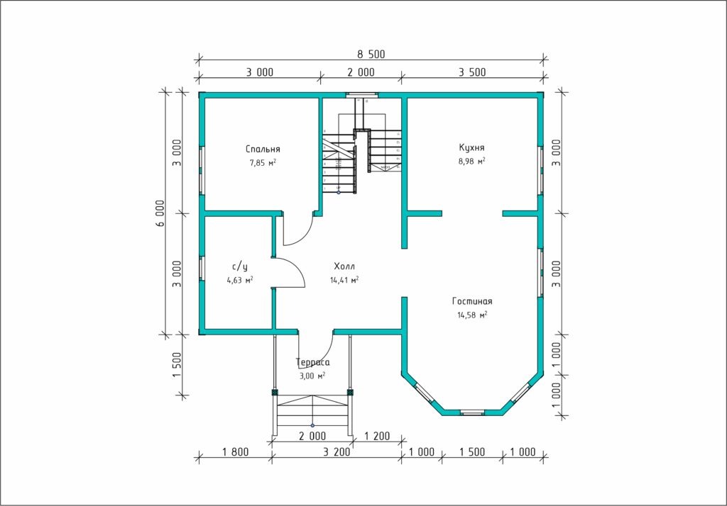
Площадь
115 м 2
Размер дома:
8x9
Этажей:
1
Спален:
4
Санузел:
1
Гараж:
Нет
Баня:
Нет
Терраса:
Да
Панорамные окна:
Нет
Мастер-спальня:
Нет
Планировка
Характеристики
- Общая площадь: 115 м2
- Жилая площадь: 89 м2
- Количество этажей: 1
- Гараж: нет
- Площадь кровли: 124 м2
- Форма: Квадратные дома
- Тип кровли: Дома с многощипцовой крышей
- Пристрой: Дома с верандой
- Отделка: С черновой отделкой
- Отделка фасада: Дома с отделкой имитацией бруса
- Размер: 8x9
- Фундамент: Дома со свайным фундаментом
Материалы и перечень работ
- Свайно-винтовой фундамент
- Основание – брус не строганный 150*150/200*150 мм (в зависимости от выбранного сечения бруса стенового комплекта) естественной влажности, в два ряда
- Стены из профилированного бруса 140*140/190*140 мм (в зависимости от выбранного сечения) естественной влажности
- Сборка углов сруба производится в «Теплый угол» (коренной шип)
- Фронтоны из доски 40*150 мм с шагом 590 мм, снаружи обшиты вагонкой 14-16 мм, сорт «Б» (камерной сушки)
- Лаги пола из доски 50*150/100*150 мм, с шагом 600 мм
- Кровельное покрытие «Ондулин»
- Стропильная система из доски 40*100/40*150 мм с шагом не более 590 мм
- Обрешетка из обрезной доски сечением 22*100 мм
- Ветро-гидроизоляционная мембрана «Изоспан А» (или аналоги)
- Свесы подшиваются вагонкой камерной сушки 14 мм, сорт «Б» (ширина свесов 450 мм)
- В стоимость не входит
- В стоимость не входит
- В стоимость не входит
- Свайно-винтовой фундамент
- Основание – брус не строганный 150*150/200*150 мм (в зависимости от выбранного сечения бруса стенового комплекта) естественной влажности, в два ряда
- Стены из профилированного бруса 140*140/190*140 мм (в зависимости от выбранного сечения) естественной влажности
- Сборка углов сруба производится в «Теплый угол» (коренной шип)
- Фронтоны из доски 40*150 мм с шагом 590 мм, снаружи обшиты вагонкой 14-16 мм, сорт «Б» (камерной сушки)
- Лаги пола из доски 50*150/100*150 мм, с шагом 600 мм
- Кровельное покрытие «Ондулин»
- Стропильная система из доски 40*100/40*150 мм с шагом не более 590 мм
- Обрешетка из обрезной доски сечением 22*100 мм
- Ветро-гидроизоляционная мембрана «Изоспан А» (или аналоги)
- Свесы подшиваются вагонкой камерной сушки 14 мм, сорт «Б» (ширина свесов 450 мм)
- В стоимость не входит
- В стоимость не входит
- В стоимость не входит
Что еще входит в стоимость:
Отправьте свои контакты и мы расчитаем вам смету
Скорее всего вам подойдут следующие проекты домов:
Проект одноэтажного дома Одноэтажный деревянный дом по проекту 60ПБ
Семья с двумя детьми
Дом подходит для:
Дом подходит для:
Дом подходит для:
Дом подходит для:














