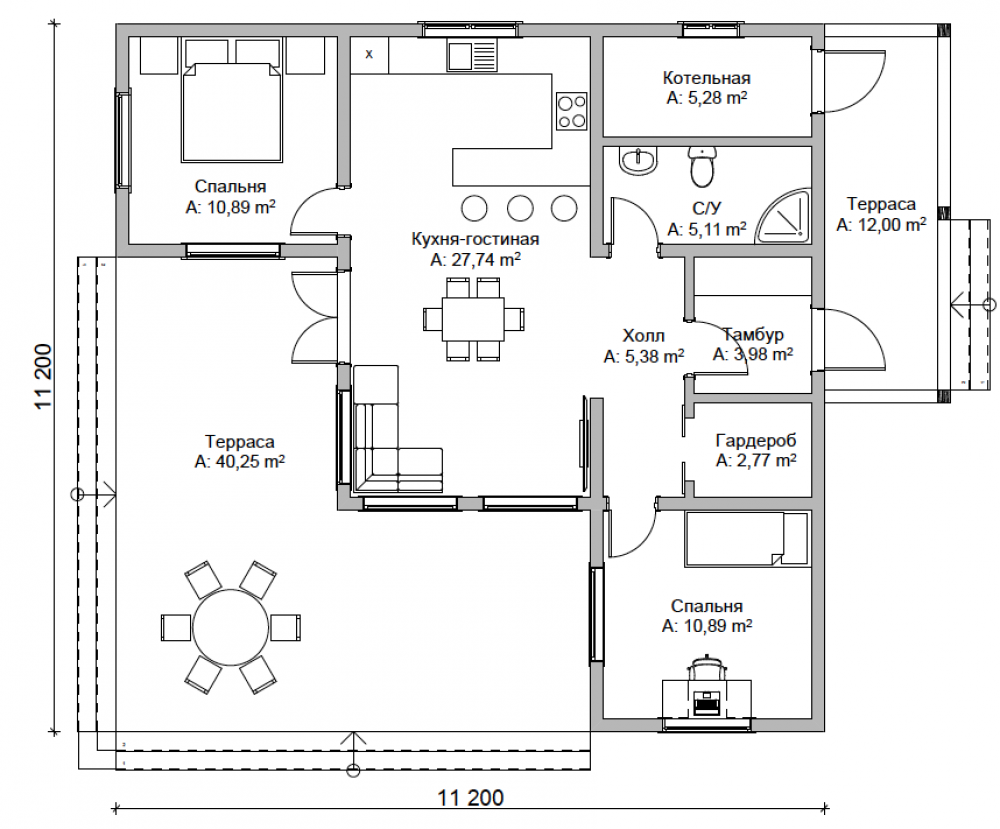
Проект одноэтажного дома Южанин
Площадь
79 м 2
Размер дома:
11x11
Этажей:
1
Спален:
2
Санузел:
0
Гараж:
Нет
Баня:
Нет
Терраса:
Нет
Панорамные окна:
Нет
Мастер-спальня:
Нет
О проекте
Проект, где двор и интерьер — части одного замысла. Комфортное пространство в 79 м² подойдёт для любой семьи. металлочерепица придаёт дому выразительность и надёжность. Архитектура выполнена в стиле финские дома. Стены из Каркас хорошо держат тепло и защищают от шума.Характеристики
- Общая площадь: 79 м2
- Количество этажей: 1
- Стиль, разновидность: Финские дома
- Форма: Г-образные дома
- Тип кровли: Дома с четырехскатной крышей (вальмовой)
- Отделка: Без отделки
- Размер: 11x11










