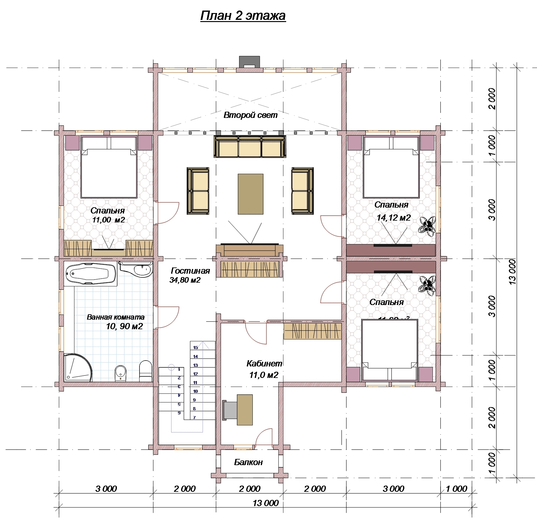
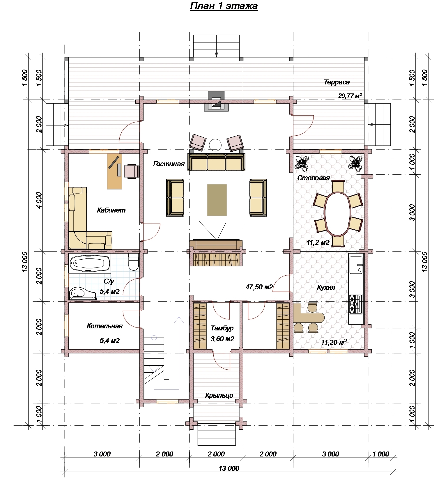
Проект двухэтажного дома Зеленоград 12х14,5
Площадь
228 м 2
Размер дома:
13x13
Этажей:
2
Спален:
4
Санузел:
0
Гараж:
Нет
Баня:
Нет
Терраса:
Нет
Панорамные окна:
Нет
Мастер-спальня:
Нет
О проекте
Проект сочетает современные тенденции с традиционным уютом.78 м² — когда важно, чтобы было не много, но достаточно. Количество спален — 2, делая планировку гибкой. Дом спроектирован в духе дома в стиле русский. Выбор бруса обусловлен его теплоизоляционными свойствами.Характеристики
- Общая площадь: 228 м2
- Количество этажей: 2
- Стиль, разновидность: Дома в стиле замок
- Форма: Широкие дома
- Тип кровли: Дома с многощипцовой крышей
- Отделка: Без отделки
- Размер: 13x13
Отправьте свои контакты и мы расчитаем вам смету
Скорее всего вам подойдут следующие проекты домов:
Дом подходит для:
Дом подходит для:
Проект двухэтажного дома Разноуровневый дом из бруса со вторым светом по проекту Восторг
Для большой семьи
Дом подходит для:
Дом подходит для:














