Проект двухэтажного дома Zet-03/11
Площадь
267 м 2
Размер дома:
Этажей:
2
Спален:
0
Санузел:
0
Гараж:
Нет
Баня:
Нет
Терраса:
Нет
Панорамные окна:
Нет
Мастер-спальня:
Нет
О проекте
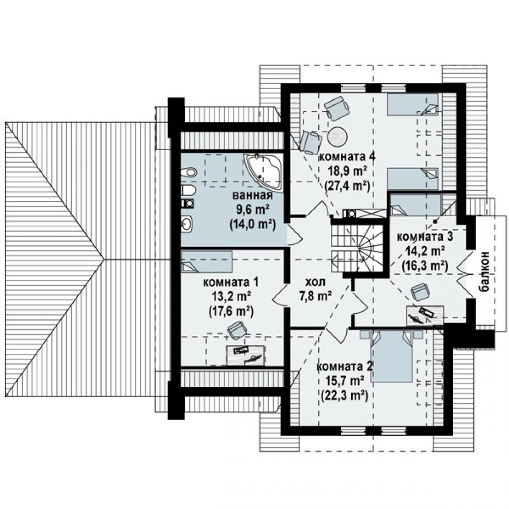
Дом-убежище, где мир становится добрее. 267 м² — дом не теряет индивидуальности. Дом спроектирован в духе дома в классическом стиле. Двухэтажная просторная планировка создаёт идеальные условия для жизни всей семьи. металлочерепица придаёт дому выразительность и надёжность.Характеристики
- Общая площадь: 267 м2
- Количество этажей: 2
- Стиль, разновидность: Дома в ином стиле
- Тип кровли: Дома с иной крышей
- Отделка: Без отделки
Отправьте свои контакты и мы расчитаем вам смету
Скорее всего вам подойдут следующие проекты домов:
Проект двухэтажного дома Дом id-52935
Для большой семьи
Дом подходит для:
Дом подходит для:
Проект двухэтажного дома Дом id-27830
Семья с двумя детьми
Дом подходит для:
Дом подходит для:
Проект двухэтажного дома Дом id-59823
Семья с двумя детьми
Дом подходит для:
Дом подходит для:

























