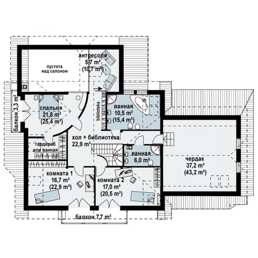
Проект двухэтажного дома Zet-06/121
Площадь
357 м 2
Размер дома:
Этажей:
2
Спален:
0
Санузел:
0
Гараж:
Нет
Баня:
Нет
Терраса:
Нет
Панорамные окна:
Нет
Мастер-спальня:
Нет
О проекте
Уютное пространство для тех, кто считает дом своей крепостью. 357 м² — дом, в который хочется возвращаться. Двухэтажная уютная планировка разделяет приватные и общественные зоны. Крыша из металлочерепица подчёркивает современный облик дома. Выбор газобетона обусловлен его теплоизоляционными свойствами.Характеристики
- Общая площадь: 357 м2
- Количество этажей: 2
- Стиль, разновидность: Дома в ином стиле
- Тип кровли: Дома с иной крышей
- Отделка: Без отделки
Отправьте свои контакты и мы расчитаем вам смету
Скорее всего вам подойдут следующие проекты домов:
Проект двухэтажного дома Дом id-112392
Для большой семьи
Дом подходит для:
Дом подходит для:
Проект двухэтажного дома Дом id-110869
Для большой семьи
Дом подходит для:
Дом подходит для:
Проект двухэтажного дома Дом id-116821
Для большой семьи
Дом подходит для:
Дом подходит для:


























