Ваш город:

Проект двухэтажного дома Жюльверн

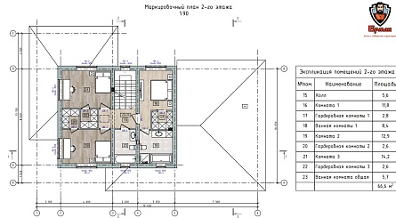
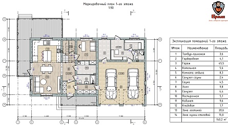
Площадь: 206 м2
Размер: 19,4x13,1
Дом подходит для:
Семья с двумя детьми
Этажей:
2
Стены:
Кровля:
Металлочерепица
Цена:
Оставить заявку
Площадь
206 м 2
Размер дома:
19,4x13,1
Этажей:
2
Спален:
3
Санузел:
4
Гараж:
Да
Баня:
Да
Терраса:
Нет
Панорамные окна:
Нет
Мастер-спальня:
Нет
Фасады
О проекте
Жюльверн — кирпичный дом площадью 206 м² с жилыми 172 м², где роскошь сочетается с домашним уютом. Высокие потолки и панорамные окна наполняют пространство светом, а добротные стены обеспечивают тишину и тепло. Металлочерепица придает фасаду благородство, а продуманная отделка делает интерьер гармоничным. Это дом для тех, кто ценит надежность и комфорт.

Характеристики
  • Общая площадь: 206 м2
  • Жилая площадь: 172 м2
  • Количество этажей: 2
  • Гараж: 45.5
  • Площадь кровли: 218 м2
  • Форма: Квадратные дома
  • Тип кровли: Дома с многощипцовой крышей
  • Пристрой: Дома с сауной
  • Отделка: White box
  • Отделка фасада: Дома с отделкой штукатуркой
  • Фундамент: Дома с плитным фундаментом
  • Класс дома: Дома класса Стандарт
Материалы и перечень работ
  • Утепленная монолитная плита с усиленными ребрами жесткостями под несущие стены
  • Разделяющий слой из геотекстиля (Такая прослойка станет надежным барьером и предотвратит смешивание песка и его заиливание);
  • Песчаная подушка с послойным трамбованием;
  • Теплоизоляция фундамента и грунта под зданием (ЭППС 50мм)
  • Бетон В25 (М350) сертифицированный;
  • Несущие стены толщиной 300 мм, благодаря высоким теплотехническим свойствам с учетом внешней отделки (кирпичная кладка/утепленные панели под кирпич) проходят норму теплосопротивляемости и не нуждаются в дополнительном утеплении.
  • Изготовление ж/б армопояса соответствует требования СНиП, что позволяет выдерживать большие нагрузки и распределять их равномерно;
  • Армопояс утеплен и исключает мостики холода.
  • Перекрытия из железобетонных плит заводского изготовления. Расчетная прочность которых в 5 раз выше, чем деревянное перекрытия из бруса.
  • Покрытие кровли - металлочерепица Grandline с полимерным покрытием Satin
  • Стропильная система Брус естественной влажности, по ГОСТ. Размер сечения 50 х 200 мм.
  • Гидро-ветрозащитная мембрана
  • Многослойная паронепроницаемая армированная плёнка из полиэтилена. С алюминиевым рефлексным слоем, защищённым прозрачным полиэфирным покрытием.
  • В стоимость не входит
  • В стоимость не входит
  • В стоимость не входит
  • Утепленная монолитная плита с усиленными ребрами жесткостями под несущие стены
  • Разделяющий слой из геотекстиля (Такая прослойка станет надежным барьером и предотвратит смешивание песка и его заиливание);
  • Песчаная подушка с послойным трамбованием;
  • Теплоизоляция фундамента и грунта под зданием (ЭППС 50мм)
  • Бетон В25 (М350) сертифицированный;
  • Несущие стены толщиной 300 мм, благодаря высоким теплотехническим свойствам с учетом внешней отделки (кирпичная кладка/утепленные панели под кирпич) проходят норму теплосопротивляемости и не нуждаются в дополнительном утеплении.
  • Изготовление ж/б армопояса соответствует требования СНиП, что позволяет выдерживать большие нагрузки и распределять их равномерно;
  • Армопояс утеплен и исключает мостики холода.
  • Перекрытия из железобетонных плит заводского изготовления. Расчетная прочность которых в 5 раз выше, чем деревянное перекрытия из бруса.
  • Покрытие кровли - металлочерепица Grandline с полимерным покрытием Satin
  • Стропильная система Брус естественной влажности, по ГОСТ. Размер сечения 50 х 200 мм.
  • Гидро-ветрозащитная мембрана
  • Многослойная паронепроницаемая армированная плёнка из полиэтилена. С алюминиевым рефлексным слоем, защищённым прозрачным полиэфирным покрытием.
  • В стоимость не входит
  • В стоимость не входит
  • В стоимость не входит
Что еще входит в стоимость:
Технический надзор
Фото и видеоотчет
Отправьте свои контакты и мы расчитаем вам смету
Прикрепить документ
Скорее всего вам подойдут следующие проекты домов: