Сделано: фундамент.
Есть строительный проект.
Подъезд к участку свободный.
Материалы в наличии.
Мы ищем опытную строительную бригаду для выполнения полного цикла работ по строительству дома из клеёного бруса в Московская область.
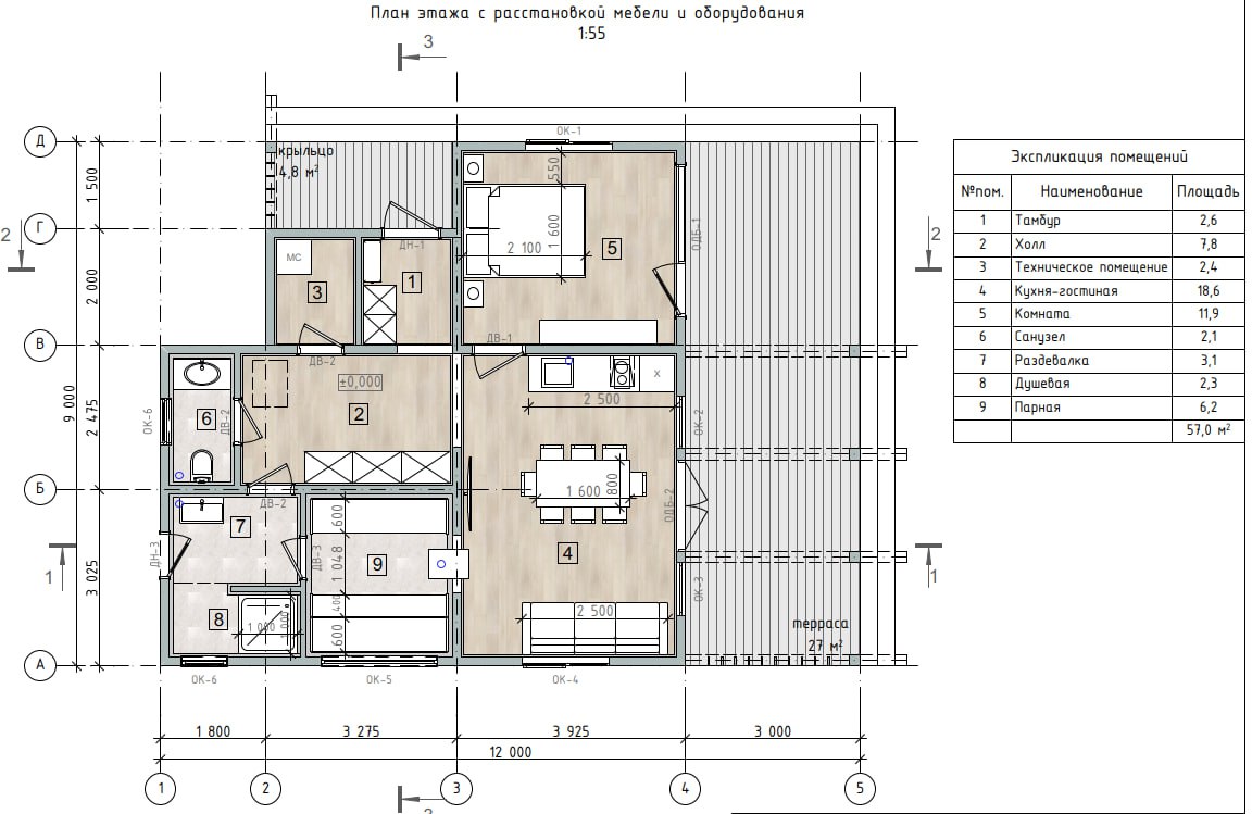
О проекте:
Объект представляет собой индивидуальный дом . В задачи бригады войдут все виды работ по строительству, начиная от возведения каркаса дома и заканчивая внутренней и внешней отделкой.
Объем работ:
1. Конструктивные работы:
• Возведение каркаса дома из клеёного бруса 208x185 мм.
• Обвязка профилированной трубой.
2. Утепление и плёнки:
• Утепление пола, стен, потолка (200 мм), внутренних перегородок (100 мм).
• Установка гидро- и ветрозащитных плёнок Ондутис с обязательной проклейкой швов скотчем Delta.
3. Кровельные работы:
• Монтаж металлочерепицы.
• Установка водосточной системы из пластика и снегозадержателей для мягкой кровли.
• Подшивка свесов кровли по стропилам.
4. Внутренняя отделка:
• Монтаж фанеры и ГВЛВ под стяжку и чистовое покрытие пола.
• Обшивка стен клеёным брусом и потолка евровагонкой.
• Подготовка пола и стен в мокрых зонах под укладку плитки (ГВЛВ).
5. Внешняя отделка:
• Обшивка стен снаружи клеёным брусом.
• Монтаж террасной доски из лиственницы (сорт А).
• Установка временных ступеней на террасу.
Что не нужно делать:
1. Фундамент – установка фундамента не требуется (свайно-винтовой фундамент уже предусмотрен).
2. Монтаж окон – не требуется, компания, которая поставляет окна, осуществляет их монтаж.
3. Покраска – как внутри, так и снаружи, покраска не требуется.
4. Межкомнатные двери – установка межкомнатных дверей не входит в объем работ.
5. Инженерные работы:
• Установка системы отопления (газового или электрического котла).
• Монтаж скрытой электрики и сантехники.
• Укладка стяжки пола.
• Монтаж теплого пола.
• Установка систем вентиляции.
Что мы предоставляем:
1. С вами будет работать опытный прораб, который поможет решить все технические моменты, если они возникнут.
2. Вы получите поддержку от снабжения – все материалы уже заказаны и готовы к выезду на объект согласно графику работ.
3. Обеспечим комфортное проживание на объекте – предоставим все необходимое.
4. Работаем по договору, выплачиваем аванс и еженедельно по результатам выполненных работ – оплата наличными без задержек и проволочек.
5. Предоставляем полную проектную документацию, которая позволит провести работы быстро и качественно. В помощь будет также прикреплен архитектор-конструктор, который поможет разобраться в проекте.
6. Для оперативного решения рабочих вопросов с вами будет взаимодействовать специальный менеджер.
. Если вы хорошо выполняете работы по данному объекту, за 1 месяц до окончания мы оперативно предложим следующий проект, чтобы у вас не было простоев.
Если вам интересно, оставляйте заявку, и мы отправим вам график оплат, график строительных работ и подробное описание проекта.

