Проект двухэтажной бани Баня из клееного бруса Атланта
Дом подходит для:
Площадь
127 м 2
Размер дома:
8x15
Этажей:
2
Спален:
1
Санузел:
1
Гараж:
Нет
Баня:
Нет
Терраса:
Нет
Панорамные окна:
Нет
Мастер-спальня:
Нет
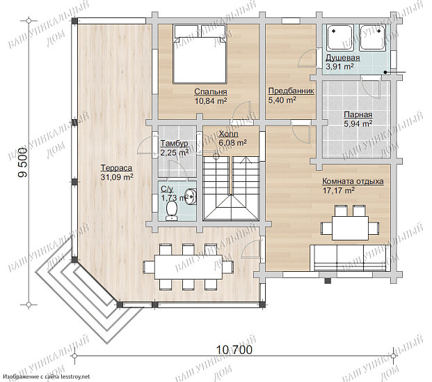
Планировка
Характеристики
- Общая площадь: 127 м2
- Жилая площадь: 34 м2
- Количество этажей: 2
- Гараж: нет
- Площадь кровли: 130 м2
- Отделка: Без отделки
- Фундамент: Дома со свайным фундаментом
Материалы и перечень работ
- проект КЖ
- земляные работы
- бетонные работы
- гидроизоляционные работы
- техническое оборудование
- стеновой комплект: брус клееный 185(h)х205 мм (сосна) с конструкционным запилом чашек под архитектурно-планировочное решение Заказчика
- подкладочная доска (лиственница)
- стропильная система
- комплектующие, фурнитура
- доставка материалов
- монтаж
- металлочерепица (покрытие кровли)
- деревянные окна и двери собственного производства
- обсадная доска
- наличники, отливы
- монтаж деревянных окон и дверей
- доставка материалов
- электромонтажные работы
- подключение дома к централизованной электросети
- установка систем отопления
- монтаж систем водоснабжения, канализации
- шлифовка и окрашивание наружных стен
- материалы
- доставка материалов
- работа по колеровке и шлифовке
- проект КЖ
- земляные работы
- бетонные работы
- гидроизоляционные работы
- техническое оборудование
- стеновой комплект: брус клееный 185(h)х205 мм (сосна) с конструкционным запилом чашек под архитектурно-планировочное решение Заказчика
- подкладочная доска (лиственница)
- стропильная система
- комплектующие, фурнитура
- доставка материалов
- монтаж
- металлочерепица (покрытие кровли)
- деревянные окна и двери собственного производства
- обсадная доска
- наличники, отливы
- монтаж деревянных окон и дверей
- доставка материалов
- электромонтажные работы
- подключение дома к централизованной электросети
- установка систем отопления
- монтаж систем водоснабжения, канализации
- шлифовка и окрашивание наружных стен
- материалы
- доставка материалов
- работа по колеровке и шлифовке
Что еще входит в стоимость:
Отправьте свои контакты и мы расчитаем вам смету
Скорее всего вам подойдут следующие проекты домов:
Дом подходит для:
Дом подходит для:
Дом подходит для:










