Проект двухэтажного дома Кроткий
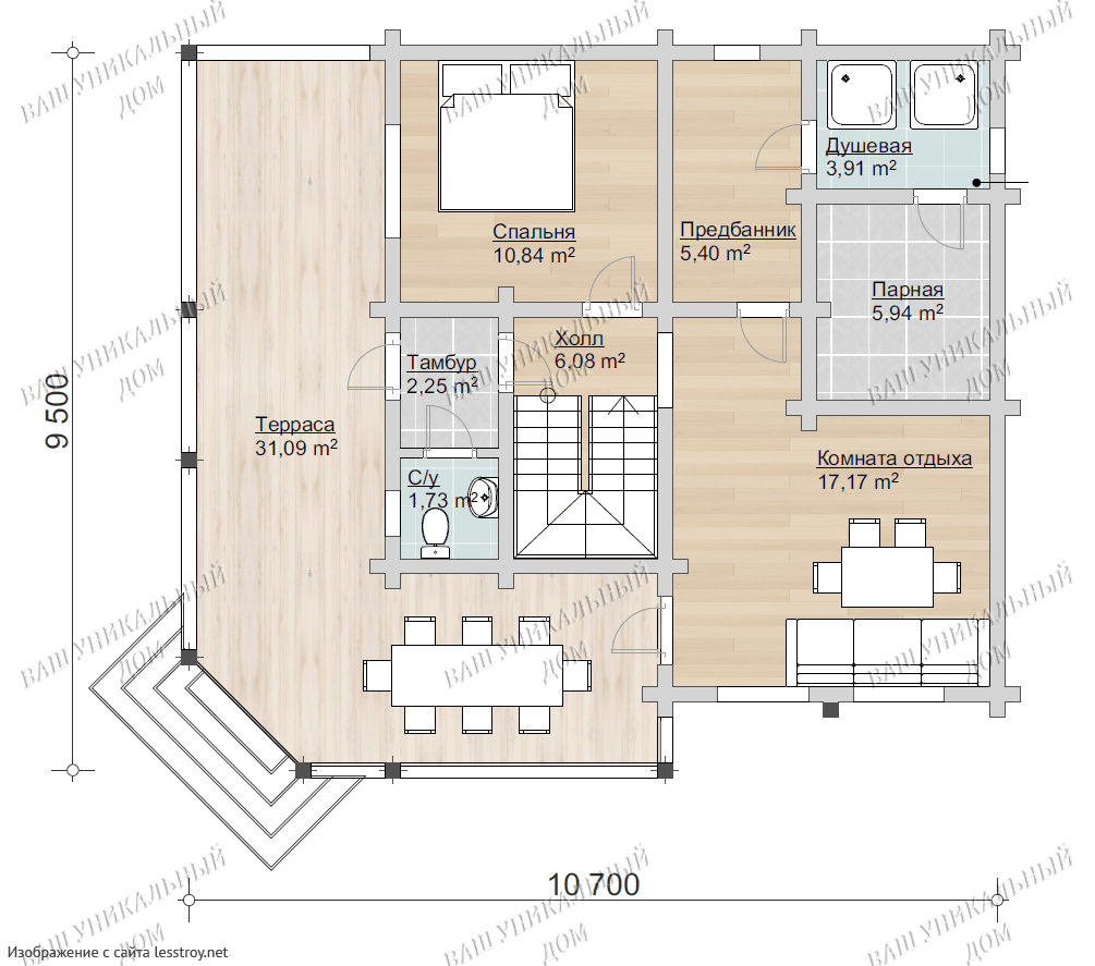
Площадь
119 м 2
Размер дома:
Этажей:
2
Спален:
3
Санузел:
0
Гараж:
Нет
Баня:
Нет
Терраса:
Нет
Панорамные окна:
Нет
Мастер-спальня:
Нет
О проекте
Дом-убежище, где мир становится добрее. 119 м² обеспечивают лёгкость и мобильность в повседневной жизни. Брус делает дом надёжным при любой погоде. металлочерепица придаёт дому выразительность и надёжность. Дом спроектирован в духе финские дома.Характеристики
- Общая площадь: 119.4 м2
- Количество этажей: 2
- Стиль, разновидность: Финские дома
- Форма: Квадратные дома
- Тип кровли: Дома с многощипцовой крышей
- Отделка: Без отделки
Отправьте свои контакты и мы расчитаем вам смету
Скорее всего вам подойдут следующие проекты домов:
Проект двухэтажного дома Норд М 2
Семья с двумя детьми
Дом подходит для:
Дом подходит для:
Дом подходит для:
Дом подходит для:









