Проект двухэтажного дома Норд М 2
Дом подходит для:
Площадь
101 м 2
Размер дома:
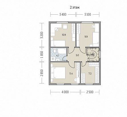
8.5x7
Этажей:
2
Спален:
3
Санузел:
2
Гараж:
Нет
Баня:
Нет
Терраса:
Да
Панорамные окна:
Нет
Мастер-спальня:
Нет
Планировка
Фасады
О проекте
Дом "Норд М 2" 101 м² — это идеальный баланс традиционного уюта и современного комфорта. Экологичные стены из натурального бруса создают особую атмосферу тепла и домашнего очага, а стильная металлочерепичная крыша придает дому аккуратный завершенный вид. Планировка продумана для комфортной жизни семьи: три уютные спальни обеспечивают личное пространство для каждого, а два санузла избавляют от утренней суеты. Просторная гостиная с кухонной зоной становится естественным центром дома, где так приятно собираться всем вместе. Надежный свайный фундамент делает дом универсальным решением для разных типов участков. Этот проект сочетает в себе лучшие качества загородного жилья: натуральные материалы, продуманную планировку и современный уровень комфорта. Отличный выбор для тех, кто ценит гармонию природы и уют семейного гнезда.Характеристики
- Общая площадь: 101.01 м2
- Жилая площадь: 78 м2
- Количество этажей: 2
- Гараж: нет
- Площадь кровли: 106 м2
- Стиль, разновидность: Дома в стиле Бельгийская деревня
- Форма: Квадратные дома
- Тип кровли: Дома с двускатной крышей
- Пристрой: Дома с террасой
- Отделка: Без отделки
- Фундамент: Дома со свайным фундаментом
Материалы и перечень работ
- Фундамент: свайный 2,5 м с ростверком из трубы профилированной 80х120 мм (ниже глубины промерзания). Цоколь обшит ОСП
- Стены: два этажа из клеёного бруса 146х180 мм
- Полы: утепление — 200 мм по энергофлексу, доска пола — 35 мм; обработка огнебиозащитой нижнего конструктива
- Стены: из клеёного бруса 146х180 мм
- Перегородки: из клеёного бруса 146х180 и 146х80 мм
- Потолок: утепление — 100 мм, отделка вагонкой 12,5 мм.
- Кровля: металлочерепица «Каскад», цвет красный
- Окна: пластиковые, с двойным стеклопакетом (3 стекла)
- Двери: деревянные. Входная, внутренние — филенчатые. На балконе дверь пластиковая, стеклопакет двойной
- В стоимость не входит
- В стоимость не входит
- Фундамент: свайный 2,5 м с ростверком из трубы профилированной 80х120 мм (ниже глубины промерзания). Цоколь обшит ОСП
- Стены: два этажа из клеёного бруса 146х180 мм
- Полы: утепление — 200 мм по энергофлексу, доска пола — 35 мм; обработка огнебиозащитой нижнего конструктива
- Стены: из клеёного бруса 146х180 мм
- Перегородки: из клеёного бруса 146х180 и 146х80 мм
- Потолок: утепление — 100 мм, отделка вагонкой 12,5 мм.
- Кровля: металлочерепица «Каскад», цвет красный
- Окна: пластиковые, с двойным стеклопакетом (3 стекла)
- Двери: деревянные. Входная, внутренние — филенчатые. На балконе дверь пластиковая, стеклопакет двойной
- В стоимость не входит
- В стоимость не входит
Что еще входит в стоимость:
Отправьте свои контакты и мы расчитаем вам смету
Скорее всего вам подойдут следующие проекты домов:
Дом подходит для:
Дом подходит для:







