Проект двухэтажного дома 15-118
Дом подходит для:
Площадь
118 м 2
Размер дома:
6x9
Этажей:
2
Спален:
2
Санузел:
2
Гараж:
Нет
Баня:
Нет
Терраса:
Нет
Панорамные окна:
Нет
Мастер-спальня:
Нет
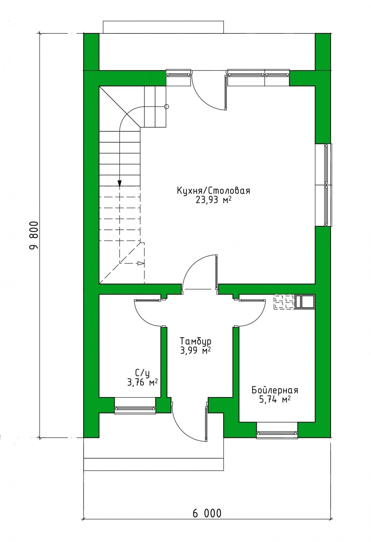
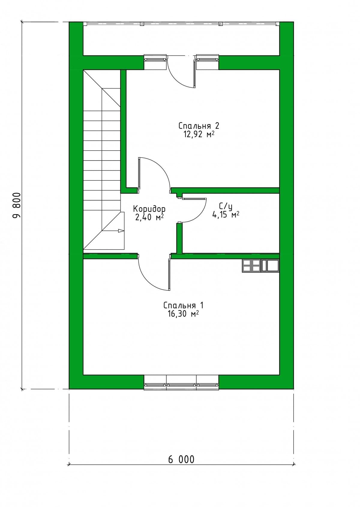
Планировка
Фасады
О проекте
Ууютный дом из газобетона площадью 118 м² с жилыми 94 м², где простор и уют идут рука об руку. Светлые комнаты с продуманной планировкой создают ощущение простора, а натуральные материалы дарят тепло и спокойствие. Металлочерепица дополняет лаконичный фасад, а удобные решения делают жизнь здесь комфортной. Идеальный вариант для семьи с одним ребенком.Характеристики
- Общая площадь: 118 м2
- Жилая площадь: 94 м2
- Количество этажей: 2
- Гараж: нет
- Площадь кровли: 125 м2
- Отделка: Без отделки
- Размер: 6x9
- Фундамент: Дома с УРФ
Материалы и перечень работ
- УРФ (Утепленный Русский фундамент) - это утепленная с двух сторон мелкозаглубленная лента с утеплённым монолитным перекрытием на песчаном основании.
- Перекрытия: Монолитные и железобетонные плиты
- Стены: Газобетонные блоки Bonolit 150мм, 250мм, 375мм
- Австрийские керамзитобетонные вентиляционные каналы Schiedel
- Стропильная система: Устройство стропильной системы с усилениями и обрешетками. Мы используем калиброванный, строганный пиломатериал, и предусмотрели оптимальную толщину утеплителя для зимнего проживания - 200мм.
- Металлочерепица М28 (Zn 275), цвет коричневый, Уникма
- В стоимость не входят
- Закладные под инженерные коммуникации в перекрытиях
- В стоимость не входит
- УРФ (Утепленный Русский фундамент) - это утепленная с двух сторон мелкозаглубленная лента с утеплённым монолитным перекрытием на песчаном основании.
- Перекрытия: Монолитные и железобетонные плиты
- Стены: Газобетонные блоки Bonolit 150мм, 250мм, 375мм
- Австрийские керамзитобетонные вентиляционные каналы Schiedel
- Стропильная система: Устройство стропильной системы с усилениями и обрешетками. Мы используем калиброванный, строганный пиломатериал, и предусмотрели оптимальную толщину утеплителя для зимнего проживания - 200мм.
- Металлочерепица М28 (Zn 275), цвет коричневый, Уникма
- В стоимость не входят
- Закладные под инженерные коммуникации в перекрытиях
- В стоимость не входит
Что еще входит в стоимость:
Отправьте свои контакты и мы расчитаем вам смету
Скорее всего вам подойдут следующие проекты домов:
Проект двухэтажного дома Дом id-118652
Для большой семьи
Дом подходит для:
Дом подходит для:
Проект двухэтажного дома Дом id-54431
Для большой семьи
Дом подходит для:
Дом подходит для:
Проект двухэтажного дома Дом id-35400
Семья с двумя детьми
Дом подходит для:
Дом подходит для:























