Проект двухэтажного дома Дом id-35400
Дом подходит для:
Площадь
128 м 2
Размер дома:
14x10
Этажей:
2
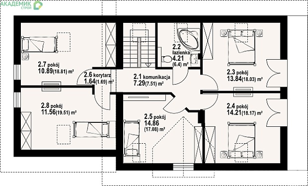
Спален:
3
Санузел:
2
Гараж:
Нет
Баня:
Нет
Терраса:
Нет
Панорамные окна:
Нет
Мастер-спальня:
Нет
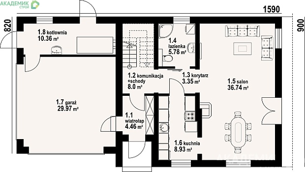
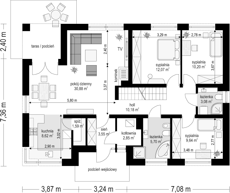
Планировка
Характеристики
- Общая площадь: 128 м2
- Жилая площадь: 95 м2
- Количество этажей: 2
- Гараж: Без гаража
- Площадь кровли: 194,05 м2
- Размер: 14x10
- Фундамент: Дома с ленточным фундаментом
Отправьте свои контакты и мы расчитаем вам смету
Скорее всего вам подойдут следующие проекты домов:
Проект двухэтажного дома Дом id-119594
Семья с двумя детьми
Дом подходит для:
Дом подходит для:
Проект двухэтажного дома Дом id-25049
Для большой семьи
Дом подходит для:
Дом подходит для:
Проект двухэтажного дома Дом id-96203
Семья с двумя детьми
Дом подходит для:
Дом подходит для:






















