Проект двухэтажного дома Дом id-119594
Дом подходит для:
Площадь
126 м 2
Размер дома:
10x14
Этажей:
2
Спален:
3
Санузел:
2
Гараж:
Нет
Баня:
Нет
Терраса:
Нет
Панорамные окна:
Нет
Мастер-спальня:
Нет
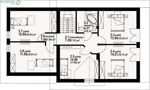
Планировка
Характеристики
- Общая площадь: 126 м2
- Жилая площадь: 92 м2
- Количество этажей: 2
- Гараж: Без гаража
- Размер: 10x14
- Фундамент: Дома с ленточным фундаментом
Отправьте свои контакты и мы расчитаем вам смету
Скорее всего вам подойдут следующие проекты домов:
Проект двухэтажного дома Дом id-25049
Для большой семьи
Дом подходит для:
Дом подходит для:
Проект двухэтажного дома Дом id-35400
Семья с двумя детьми
Дом подходит для:
Дом подходит для:
Проект двухэтажного дома Дом id-96203
Семья с двумя детьми
Дом подходит для:
Дом подходит для:

























