Проект двухэтажного дома 200 м² Арт. 2.22
Дом подходит для:
Площадь
200 м 2
Размер дома:
9х17
Этажей:
2
Спален:
3
Санузел:
2
Гараж:
Нет
Баня:
Нет
Терраса:
Нет
Панорамные окна:
Нет
Мастер-спальня:
Нет
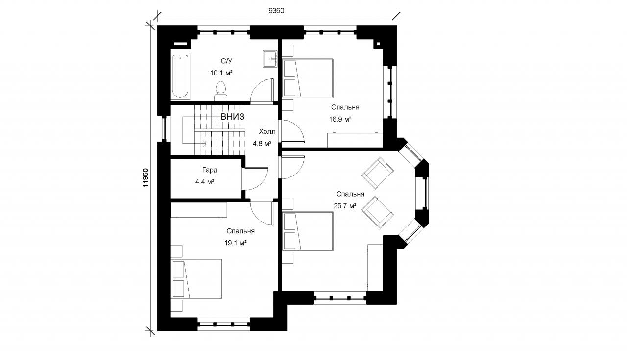
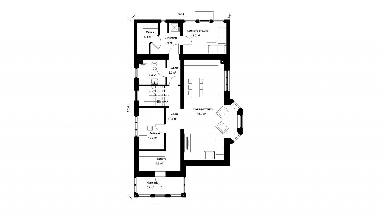
Планировка
Характеристики
- Общая площадь: 200 м2
- Жилая площадь: 149 м2
- Количество этажей: 2
- Гараж: нет
- Площадь кровли: 204 м2
- Отделка: Без отделки
- Фундамент: Дома со свайным фундаментом
Материалы и перечень работ
- Железобетонные буронабивные сваи с анкерным расширением в основании и ростверком.
- Наружные стены дома из керамического блока 2.1 НФ, утепленные каменной ватой на 100 мм. вентиляционный зазор 30 мм. между утеплителем и облицовочной частью дома, снаружи дом отделан облицовочным кирпичом.
- Облицовка дома и внутренняя стена связываются между собой базальтовой сеткой.
- Штучная цементно-песчаная черепица BRAAS с необходимыми доборными элементами.
- Отделка карнизов и свесов кровли фиброцементной доской, либо софитами Docke.
- Подкровельная мембрана «Ютайвек».
- Утепленная металлическая дверь с терморазрывами по коробке и полотну, с металлическим окрашенным листом снаружи и ламинированной под дерево внутренней панелью МДФ.
- Оконные блоки из профиля MELKE (Россия) с двухкамерными стеклопакетами 32мм.
- Заземляющий контур. Ввод водопровода с греющим кабелем.
- Вывод технической и фекальной канализаций.
- Кран полива участка.
- Разводка металлопластиковых труб по дому. Кран ввода воды, фильтр глубокой очистки, манометр, распределительный коллектор, электробойлер. Подключение всех приборов.
- Скрытая разводка электропроводки в стальных трубах. Установка ВРУ, УЗО и автоматов на каждую группу потребителей. Монтаж освещения, выключателей и розеток.
- Облицовка натуральным кирпичом либо штукатуркой.
- Отделка стен гипсовой штукатуркой (машинный способ нанесения). Подоконники и откосы на окнах и дверях. Утепление и стяжка полов.
- Железобетонные буронабивные сваи с анкерным расширением в основании и ростверком.
- Наружные стены дома из керамического блока 2.1 НФ, утепленные каменной ватой на 100 мм. вентиляционный зазор 30 мм. между утеплителем и облицовочной частью дома, снаружи дом отделан облицовочным кирпичом.
- Облицовка дома и внутренняя стена связываются между собой базальтовой сеткой.
- Штучная цементно-песчаная черепица BRAAS с необходимыми доборными элементами.
- Отделка карнизов и свесов кровли фиброцементной доской, либо софитами Docke.
- Подкровельная мембрана «Ютайвек».
- Утепленная металлическая дверь с терморазрывами по коробке и полотну, с металлическим окрашенным листом снаружи и ламинированной под дерево внутренней панелью МДФ.
- Оконные блоки из профиля MELKE (Россия) с двухкамерными стеклопакетами 32мм.
- Заземляющий контур. Ввод водопровода с греющим кабелем.
- Вывод технической и фекальной канализаций.
- Кран полива участка.
- Разводка металлопластиковых труб по дому. Кран ввода воды, фильтр глубокой очистки, манометр, распределительный коллектор, электробойлер. Подключение всех приборов.
- Скрытая разводка электропроводки в стальных трубах. Установка ВРУ, УЗО и автоматов на каждую группу потребителей. Монтаж освещения, выключателей и розеток.
- Облицовка натуральным кирпичом либо штукатуркой.
- Отделка стен гипсовой штукатуркой (машинный способ нанесения). Подоконники и откосы на окнах и дверях. Утепление и стяжка полов.
Что еще входит в стоимость:
Отправьте свои контакты и мы расчитаем вам смету
Скорее всего вам подойдут следующие проекты домов:
Проект двухэтажного дома П298
Для большой семьи
Дом подходит для:
Дом подходит для:
Дом подходит для:
Проект двухэтажного дома Орловъ
Для большой семьи
Дом подходит для:
Дом подходит для:











