Проект двухэтажного дома Орловъ
Дом подходит для:
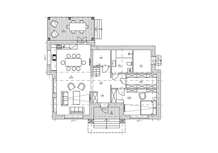
Площадь
217 м 2
Размер дома:
14х11
Этажей:
2
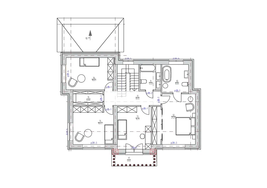
Спален:
5
Санузел:
3
Гараж:
Нет
Баня:
Нет
Терраса:
Нет
Панорамные окна:
Нет
Мастер-спальня:
Нет
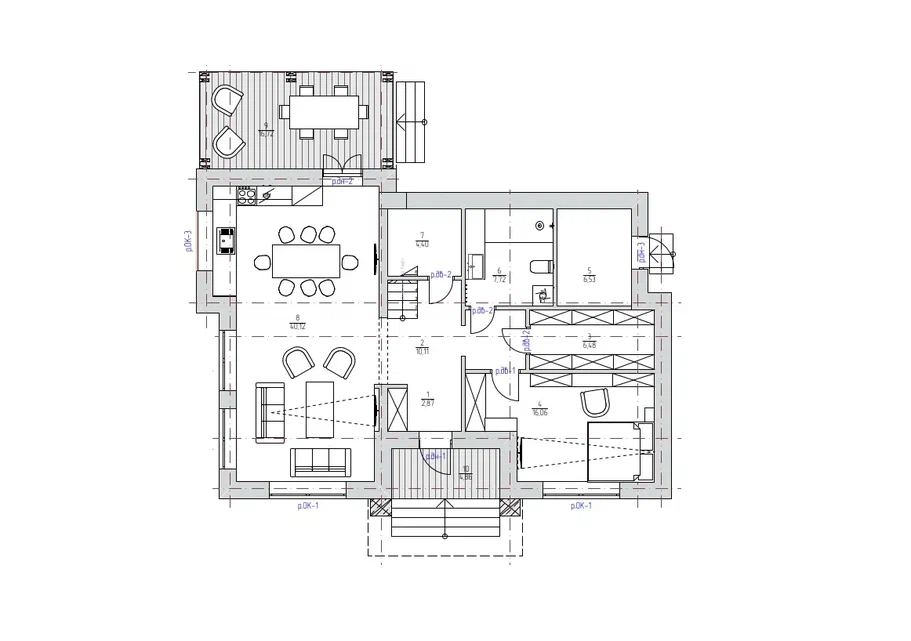
Планировка
Характеристики
- Общая площадь: 217 м2
- Жилая площадь: 125 м2
- Количество этажей: 2
- Гараж: нет
- Высота дома: 9 м
- Площадь кровли: 204,3 м2
- Отделка: Без отделки
- Фундамент: Дома с плитным фундаментом
Материалы и перечень работ
- Ж/б плита 300 мм на песчанной подготовке 300 мм
- Наружные стены 1 этажа керамические блоки D500 510 мм, второго этажа 380 мм термо, внутренние перегородки керамические блоки 380 и 120 мм.
- Кровля КликФальц
- Окна и двери ПВХ с ламинацией, профиль 70 мм, трехкамерный стеклопакет.
- В стоимость не входят
- Наружная отделка 1 этажа лепнина из полеуритана
- 2 этаж облицовочный кирпич колотый, обрамление окон и дверей лепниной, карнизы и русты из полеуретана
- Ж/б плита 300 мм на песчанной подготовке 300 мм
- Наружные стены 1 этажа керамические блоки D500 510 мм, второго этажа 380 мм термо, внутренние перегородки керамические блоки 380 и 120 мм.
- Кровля КликФальц
- Окна и двери ПВХ с ламинацией, профиль 70 мм, трехкамерный стеклопакет.
- В стоимость не входят
- Наружная отделка 1 этажа лепнина из полеуритана
- 2 этаж облицовочный кирпич колотый, обрамление окон и дверей лепниной, карнизы и русты из полеуретана
Что еще входит в стоимость:
Отправьте свои контакты и мы расчитаем вам смету
Скорее всего вам подойдут следующие проекты домов:
Проект двухэтажного дома П298
Для большой семьи
Дом подходит для:
Дом подходит для:
Проект двухэтажного дома Магма двухэтажный 14х14
Семья с двумя детьми
Дом подходит для:
Дом подходит для:
Проект двухэтажного дома 200 м² Арт. 2.22
Семья с двумя детьми
Дом подходит для:
Дом подходит для:














