Проект одноэтажного дома А-2-2.1
Дом подходит для:
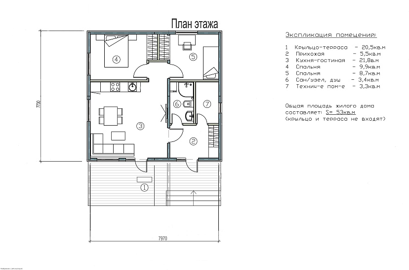
Площадь
51 м 2
Размер дома:
3x6
Этажей:
1
Спален:
1
Санузел:
1
Гараж:
Нет
Баня:
Нет
Терраса:
Нет
Панорамные окна:
Нет
Мастер-спальня:
Нет
Планировка
Фасады
О проекте
Простор этого дома площадью 51 м² создает ощущение свободы и защищенности, наполняя интерьер светом. Жилая площадь 41 м² идеально подходит для семьи с одним ребенком, предлагая уют и компактность. Каркасные стены добавляют дому легкости и современности, делая его практичным и теплым. Здесь каждый метр продуман для жизни в гармонии и комфорте.Материалы и перечень работ
- Свайно-винтовой фундамент с заполнением цпс (шаг свай 1,5×2м, длина свай 2,5 м, диаметр 108 мм, обвязка сухой строганой доской 45*195мм в три слоя)
- Cухая строганая доска 45*195/145мм (сорт АБ, влажность — 14−16%), обработана антисептиком
- Пароизоляционная мембрана Изоспан RM, проклеенная лентой Delta Multiband
- Утеплитель каменная вата URSA TERRA в плитах (200мм пол, 150 мм стены, 230 мм потолок)
- Ветро-гидроизоляционная мембрана Изоспан AQ-proff
- Кровля — двухслойная наплавляемая рулонная с верхним покрытием из сланца
- Межкомнатные двери — глухие со звукоизоляцией, фурнитура Morelli
- Входные двери — деревянные рамы с двойным контуром уплотнения, стеклопакет двухкамерный, энергоэффективный (с аргоном и i-напылением), фурнитура Roto
- Окна — деревянный профиль с двойным контуром уплотнения, стеклопакеты двухкамерные с аргоном и пластиковой рамкой, энергоэффективные (с аргоном и i-напылением), фурнитура Roto
- Витражное остекление — стеклопакет двухкамерный модели 5−14−4-14А-6i, толщина 43 мм, внутренняя камера с аргоном, внутреннее стекло с i-напылением, полимерная дистанционная рамка
- Распределительный электрощиток с автоматами ABB, кабель ВВГнг (прокладка кабеля в самозатухающей гофрированной пвх трубе)
- Розеточные группы Legrand, светодиодные потолочные светильники во всех помещениях
- Уличные влагостойкие светильники на террасах
- Уличные влагостойкие розетки на террасах
- Канализация — труба Ostendorf 50 и 110 мм
- Напольное покрытие — кварцвинил с текстурой дерева
- Стены и потолок — имитация бруса карельского профиля (хвойные породы, сорт АБ, толщина 21 мм, окраска белым лаком на водной основе)
- Торцевые стены — сухая строганная доска (хвойные породы, сорт АБ, 20×145мм, окраска чёрным лаком на водной основе)
- Санузел — керамическая плитка-мозаика пёстрая серая
- Свайно-винтовой фундамент с заполнением цпс (шаг свай 1,5×2м, длина свай 2,5 м, диаметр 108 мм, обвязка сухой строганой доской 45*195мм в три слоя)
- Cухая строганая доска 45*195/145мм (сорт АБ, влажность — 14−16%), обработана антисептиком
- Пароизоляционная мембрана Изоспан RM, проклеенная лентой Delta Multiband
- Утеплитель каменная вата URSA TERRA в плитах (200мм пол, 150 мм стены, 230 мм потолок)
- Ветро-гидроизоляционная мембрана Изоспан AQ-proff
- Кровля — двухслойная наплавляемая рулонная с верхним покрытием из сланца
- Межкомнатные двери — глухие со звукоизоляцией, фурнитура Morelli
- Входные двери — деревянные рамы с двойным контуром уплотнения, стеклопакет двухкамерный, энергоэффективный (с аргоном и i-напылением), фурнитура Roto
- Окна — деревянный профиль с двойным контуром уплотнения, стеклопакеты двухкамерные с аргоном и пластиковой рамкой, энергоэффективные (с аргоном и i-напылением), фурнитура Roto
- Витражное остекление — стеклопакет двухкамерный модели 5−14−4-14А-6i, толщина 43 мм, внутренняя камера с аргоном, внутреннее стекло с i-напылением, полимерная дистанционная рамка
- Распределительный электрощиток с автоматами ABB, кабель ВВГнг (прокладка кабеля в самозатухающей гофрированной пвх трубе)
- Розеточные группы Legrand, светодиодные потолочные светильники во всех помещениях
- Уличные влагостойкие светильники на террасах
- Уличные влагостойкие розетки на террасах
- Канализация — труба Ostendorf 50 и 110 мм
- Напольное покрытие — кварцвинил с текстурой дерева
- Стены и потолок — имитация бруса карельского профиля (хвойные породы, сорт АБ, толщина 21 мм, окраска белым лаком на водной основе)
- Торцевые стены — сухая строганная доска (хвойные породы, сорт АБ, 20×145мм, окраска чёрным лаком на водной основе)
- Санузел — керамическая плитка-мозаика пёстрая серая
Что еще входит в стоимость:
Отправьте свои контакты и мы расчитаем вам смету
Скорее всего вам подойдут следующие проекты домов:
Дом подходит для:
Проект одноэтажного дома 3051 - каркасный дом с плоской крышей с двумя спальнями
Семья с одним ребенком
Дом подходит для:
Дом подходит для:
Дом подходит для:












