Проект одноэтажного дома А 4
Дом подходит для:
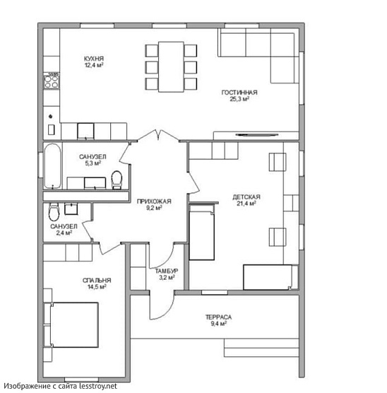
Площадь
106 м 2
Размер дома:
14,5х8,7
Этажей:
1
Спален:
2
Санузел:
1
Гараж:
Нет
Баня:
Нет
Терраса:
Нет
Панорамные окна:
Нет
Мастер-спальня:
Нет
Планировка
Фасады
О проекте
Интерьер этого дома площадью 106 м² наполнен светом и душевностью, создавая атмосферу уюта. Жилая площадь 83 м² предназначена для семьи с двумя детьми, сочетая простор и функциональность. Керамоблок в стенах обеспечивает надежность и тепло, делая дом добротным и практичным. Это место, где царит спокойствие, а каждый уголок продуман для комфортной жизни.Материалы и перечень работ
- Монолитная ж/б плита 300 мм. Арматура диаметром 12мм.
- Керамический блок Porotherm 38 Thermo.
- Стропила − п/м 50х150мм. Кровля − металлочерепица GRAND LINE , цвет на выбор, укладывается и закрепляется на обрешетке из п/м 25х150мм, по ветровлагозащитной паропроницаемой мембране.
- В стоимость не входят
- Вентиляция кухни и сан. узлов естественная, с подготовкой под установку котла отопления,выводится на кровлю при помощи вент. шахт.
- Керамический блок Porotherm 12.
- Монолитная ж/б плита 300 мм. Арматура диаметром 12мм.
- Керамический блок Porotherm 38 Thermo.
- Стропила − п/м 50х150мм. Кровля − металлочерепица GRAND LINE , цвет на выбор, укладывается и закрепляется на обрешетке из п/м 25х150мм, по ветровлагозащитной паропроницаемой мембране.
- В стоимость не входят
- Вентиляция кухни и сан. узлов естественная, с подготовкой под установку котла отопления,выводится на кровлю при помощи вент. шахт.
- Керамический блок Porotherm 12.
Что еще входит в стоимость:
Отправьте свои контакты и мы расчитаем вам смету
Скорее всего вам подойдут следующие проекты домов:
Дом подходит для:
Дом подходит для:
Дом подходит для:









