Проект двухэтажного дома Архангельск-2
Площадь
139 м 2
Размер дома:
8x8
Этажей:
2
Спален:
3
Санузел:
0
Гараж:
Нет
Баня:
Нет
Терраса:
Нет
Панорамные окна:
Нет
Мастер-спальня:
Нет
О проекте
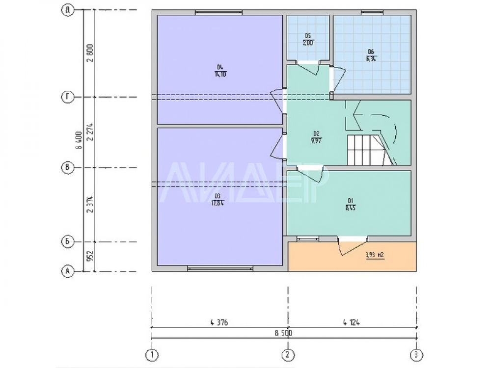
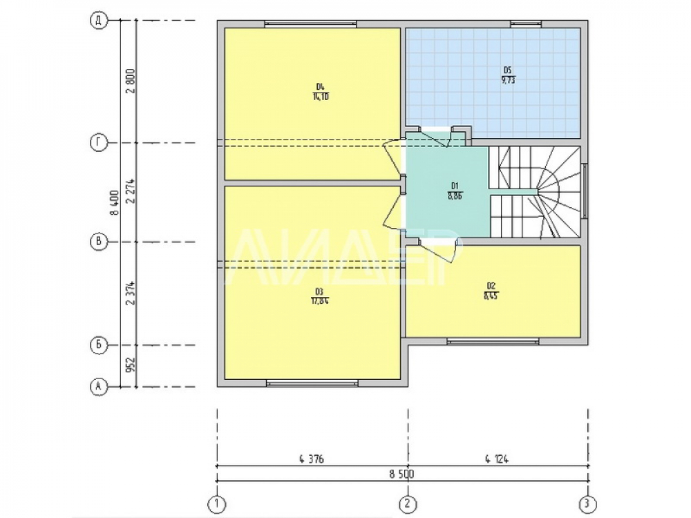
Жилище, где каждая комната имеет свой характер, но все вместе они гармоничны.139 м² — сбалансированный объём для комфортной жизни. В доме предусмотрено 3 спальни, что важно для комфорта. Двухэтажная современная планировка разделяет приватные и общественные зоны. Крыша из металлочерепица подчёркивает современный облик дома.Характеристики
- Общая площадь: 139 м2
- Количество этажей: 2
- Стиль, разновидность: Дома в ином стиле
- Форма: Прямоугольные дома
- Тип кровли: Дома с двускатной крышей
- Отделка: Без отделки
- Размер: 8x8
Отправьте свои контакты и мы расчитаем вам смету
Скорее всего вам подойдут следующие проекты домов:
Проект двухэтажного дома Каркасный дом 8х8 (8 на 8), проект двух этажного дома
Семья с одним ребенком
Дом подходит для:
Дом подходит для:
Дом подходит для:
Дом подходит для:








