Проект двухэтажного дома Авиор
Дом подходит для:
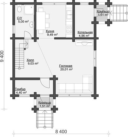
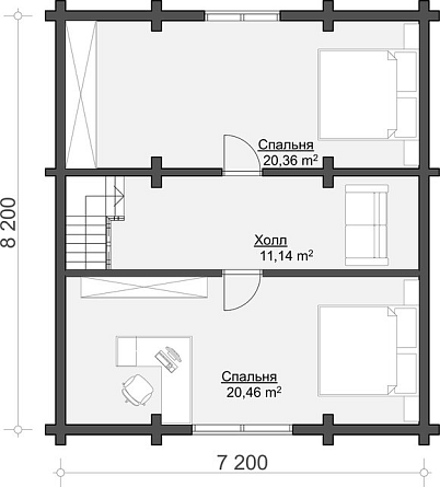
Площадь
106 м 2
Размер дома:
8.4x9.4
Этажей:
2
Спален:
2
Санузел:
2
Гараж:
Нет
Баня:
Нет
Терраса:
Да
Панорамные окна:
Нет
Мастер-спальня:
Нет
Планировка
Характеристики
- Общая площадь: 106 м2
- Жилая площадь: 82 м2
- Количество этажей: 2
- Гараж: нет
- Площадь кровли: 113 м2
- Стиль, разновидность: Дома в стиле Русский
- Форма: Квадратные дома
- Тип кровли: Дома с двускатной крышей
- Пристрой: Дома с верандой
- Отделка: Без отделки
- Отделка фасада: Дома с комбинированной отделкой
- Фундамент: Дома с железобетонным свайным фундаментом
- Класс дома: Дома класса Стандарт
- Размер бруса: 160x140
- Толщина бруса: 160
Материалы и перечень работ
- Подготовительные работы ( расчистка, покос травы, корчевка кустов).
- Разметка осей ( привязка объекта к участку).
- Забивка свай
- Монтаж оголовков
- Монтаж обвязочного бруса
- Проектирование
- Изготовление
- Монтаж стенового бруса
- Монтаж перекрытий
- Антисептирование
- Монтаж стропильной системы
- Монтаж гидроизоляции
- Контробрешетка
- Обрешетка
- Монтаж кровли
- Формирование оконных и дверных проёмов (выпиливание монтажных брусьев)
- Фрезеровка паза для закладного бруска
- Монтаж обсадных коробок
- Монтаж окон и дверей
- В стоимость не входит
- Покраска
- Заделка торцов
- Подшивка свесов кровли
- Монтаж лобовой доски
- Подготовительные работы ( расчистка, покос травы, корчевка кустов).
- Разметка осей ( привязка объекта к участку).
- Забивка свай
- Монтаж оголовков
- Монтаж обвязочного бруса
- Проектирование
- Изготовление
- Монтаж стенового бруса
- Монтаж перекрытий
- Антисептирование
- Монтаж стропильной системы
- Монтаж гидроизоляции
- Контробрешетка
- Обрешетка
- Монтаж кровли
- Формирование оконных и дверных проёмов (выпиливание монтажных брусьев)
- Фрезеровка паза для закладного бруска
- Монтаж обсадных коробок
- Монтаж окон и дверей
- В стоимость не входит
- Покраска
- Заделка торцов
- Подшивка свесов кровли
- Монтаж лобовой доски
Что еще входит в стоимость:
Отправьте свои контакты и мы расчитаем вам смету
Скорее всего вам подойдут следующие проекты домов:
Дом подходит для:
Проект двухэтажного дома Двухэтажный дом из двойного бруса «Дворец Тора»
Семья с одним ребенком
Дом подходит для:
Дом подходит для:
Дом подходит для:














