Проект двухэтажного дома B-155
Дом подходит для:
Площадь
187 м 2
Размер дома:
12x11
Этажей:
2
Спален:
5
Санузел:
2
Гараж:
Да
Баня:
Нет
Терраса:
Нет
Панорамные окна:
Нет
Мастер-спальня:
Нет
Планировка
Фасады
О проекте
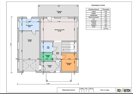
Просторный двухэтажный дом из газобетона площадью 187 м² создан для большой семьи. Жилая площадь 137 м² включает пять спален и два санузла, обеспечивая свободу каждому. Светлые комнаты и гармоничная планировка наполняют пространство теплом и уютом. Надежный плитный фундамент и качественные материалы гарантируют долговечность и комфорт.Характеристики
- Общая площадь: 187 м2
- Жилая площадь: 137 м2
- Количество этажей: 2
- Гараж: 31,6
- Площадь кровли: 189 м2
- Форма: Квадратные дома
- Тип кровли: Дома с двускатной крышей
- Пристрой: Дома с гаражом на 1 машину
- Отделка: Без отделки
- Отделка фасада: Дома с отделкой клинкерной плиткой
- Фундамент: Дома с плитным фундаментом
Материалы и перечень работ
- Монолитная ж/б плита 300мм (Бетон М350)
- Устройство вводной гильзы в цокольном перекрытии для ввода электричества
- Устройство вводной канализационной трубы в цокольном перекрытии санузлов для вывода канализации с последующим выводом за периметр фундамента
- Устройство вводной гильзы в цокольном перекрытии для ввода водоснабжения
- Газоблок 300мм "Бонолит"
- Межэтажное перекрытие - деревянные балки 50х200мм
- Внутренние (не несущие) перегородки газобетонные 100 мм D500
- Армирование блоков - Каждый третий ряд внешних и несущих стен; арматура ø ≥6 мм А500С
- Оконные и дверные перемычки - Металлический уголок 50х50мм (либо иные согласно проекту)
- Металлочерепица 0.5мм Grand Line
- Ширина карниза по периметру 50см
- Стропильная система естественной влажности
- Обрешётка по стропилам: доска обрезная 25х100 мм (± 10мм) с расстоянием между балок ≤350 мм (обзол по торцам ≤30%)
- Утепление 200мм плитный утеплитель TN® Технониколь (либо аналог) согласно проекту
- В стоимость не входит
- В стоимость не входит
- Вентиляция естественная. Дымоход из газобетона
- Монолитная ж/б плита 300мм (Бетон М350)
- Устройство вводной гильзы в цокольном перекрытии для ввода электричества
- Устройство вводной канализационной трубы в цокольном перекрытии санузлов для вывода канализации с последующим выводом за периметр фундамента
- Устройство вводной гильзы в цокольном перекрытии для ввода водоснабжения
- Газоблок 300мм "Бонолит"
- Межэтажное перекрытие - деревянные балки 50х200мм
- Внутренние (не несущие) перегородки газобетонные 100 мм D500
- Армирование блоков - Каждый третий ряд внешних и несущих стен; арматура ø ≥6 мм А500С
- Оконные и дверные перемычки - Металлический уголок 50х50мм (либо иные согласно проекту)
- Металлочерепица 0.5мм Grand Line
- Ширина карниза по периметру 50см
- Стропильная система естественной влажности
- Обрешётка по стропилам: доска обрезная 25х100 мм (± 10мм) с расстоянием между балок ≤350 мм (обзол по торцам ≤30%)
- Утепление 200мм плитный утеплитель TN® Технониколь (либо аналог) согласно проекту
- В стоимость не входит
- В стоимость не входит
- Вентиляция естественная. Дымоход из газобетона
Что еще входит в стоимость:
Отправьте свои контакты и мы расчитаем вам смету
Скорее всего вам подойдут следующие проекты домов:
Проект двухэтажного дома Дом id-110330
Для большой семьи
Дом подходит для:
Дом подходит для:
Проект двухэтажного дома Дом id-124788
Для большой семьи
Дом подходит для:
Дом подходит для:
Проект двухэтажного дома Дом id-124136
Для большой семьи
Дом подходит для:
Дом подходит для:


























