Проект двухэтажного дома Дом id-110330
Дом подходит для:
Площадь
203 м 2
Размер дома:
16x10
Этажей:
2
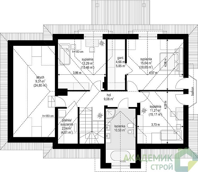
Спален:
5
Санузел:
2
Гараж:
Нет
Баня:
Нет
Терраса:
Нет
Панорамные окна:
Нет
Мастер-спальня:
Нет
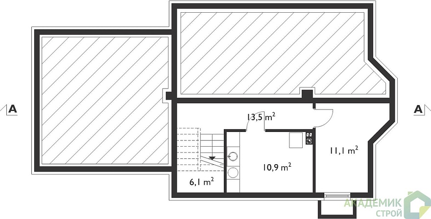
Планировка
Характеристики
- Общая площадь: 203 м2
- Жилая площадь: 152 м2
- Количество этажей: 2
- Гараж: На 2 машины
- Размер: 16x10
- Фундамент: Дома с ленточным фундаментом
Отправьте свои контакты и мы расчитаем вам смету
Скорее всего вам подойдут следующие проекты домов:
Проект двухэтажного дома Дом id-114292
Для большой семьи
Дом подходит для:
Дом подходит для:
Проект двухэтажного дома Дом id-114932
Для большой семьи
Дом подходит для:
Дом подходит для:
Проект двухэтажного дома Дом id-114824
Для большой семьи
Дом подходит для:
Дом подходит для:




















