Проект двухэтажного дома Дом id-114824
Дом подходит для:
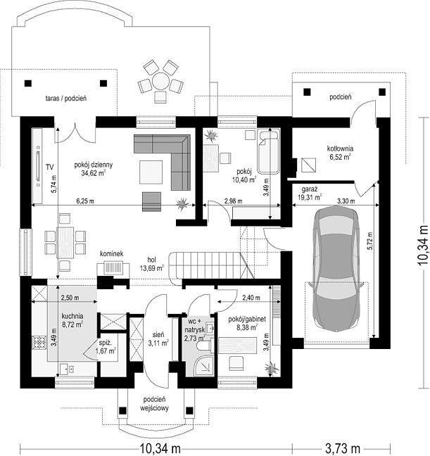
Площадь
234 м 2
Размер дома:
14x10
Этажей:
2
Спален:
5
Санузел:
3
Гараж:
Нет
Баня:
Нет
Терраса:
Нет
Панорамные окна:
Нет
Мастер-спальня:
Нет
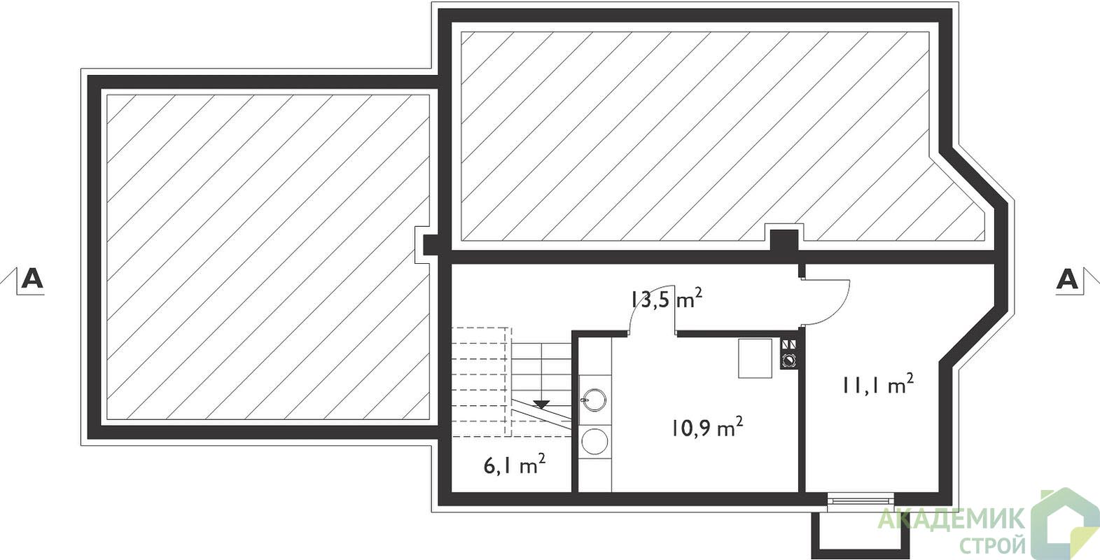
Планировка
Характеристики
- Общая площадь: 234 м2
- Жилая площадь: 149 м2
- Количество этажей: 2
- Гараж: На 1 машину
- Площадь кровли: 250,69 м2
- Размер: 14x10
- Фундамент: Дома с ленточным фундаментом
Отправьте свои контакты и мы расчитаем вам смету
Скорее всего вам подойдут следующие проекты домов:
Проект двухэтажного дома Дом id-115390
Для большой семьи
Дом подходит для:
Дом подходит для:
Проект двухэтажного дома Дом id-116813
Для большой семьи
Дом подходит для:
Дом подходит для:
Проект двухэтажного дома Дом id-110330
Для большой семьи
Дом подходит для:
Дом подходит для:


























