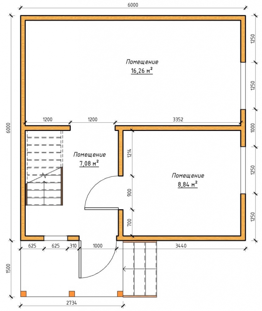
Проект двухэтажного дома Барин 60
Площадь
60 м 2
Размер дома:
6x6
Этажей:
2
Спален:
2
Санузел:
0
Гараж:
Нет
Баня:
Нет
Терраса:
Нет
Панорамные окна:
Нет
Мастер-спальня:
Нет
О проекте
Дом, который становится лучшим местом на земле. 60 м² открывают свободу для жизни без компромиссов. Двухэтажная удобная планировка разграничивает спальные и дневные помещения. Количество спален — 2, делая планировку гибкой. Крыша из металлочерепица подчёркивает современный облик дома.Характеристики
- Общая площадь: 60 м2
- Количество этажей: 2
- Стиль, разновидность: Дома в ином стиле
- Форма: Квадратные дома
- Тип кровли: Дома с иной крышей
- Отделка: Без отделки
- Размер: 6x6










