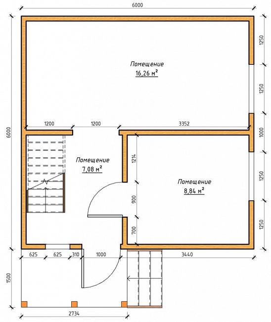
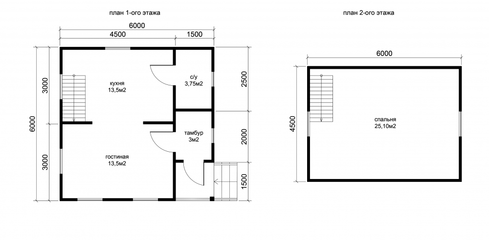
Проект двухэтажного дома К-24 каркасный дом с мансардным этажом общим размером 6,0х6,0м.
Площадь
63 м 2
Размер дома:
6x6
Этажей:
2
Спален:
0
Санузел:
0
Гараж:
Нет
Баня:
Нет
Терраса:
Нет
Панорамные окна:
Нет
Мастер-спальня:
Нет
О проекте
Пространство, где можно устроить игровую зону для детей. Свободная планировка в 63 м² вдохновляет на перемены. Двухэтажная эргономичная планировка организует пространство максимально эффективно. Выбор Каркас обусловлен его теплоизоляционными свойствами. Крыша из ондулин подчёркивает современный облик дома.Характеристики
- Общая площадь: 63 м2
- Количество этажей: 2
- Стиль, разновидность: Дома в ином стиле
- Тип кровли: Дома с двускатной крышей
- Отделка: Без отделки
- Размер: 6x6













