Проект двухэтажного дома Barn-Open A-2
Дом подходит для:
Площадь
78 м 2
Размер дома:
11х8
Этажей:
2
Спален:
2
Санузел:
1
Гараж:
Нет
Баня:
Нет
Терраса:
Нет
Панорамные окна:
Нет
Мастер-спальня:
Нет
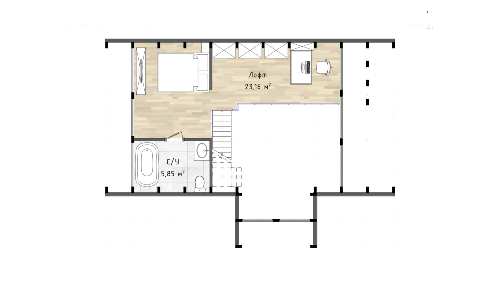
Планировка
Фасады
О проекте
Дом площадью 78 м² с жилой зоной 61 м² создан для тех, кто ценит стиль и практичность. Брусчатые стены обеспечивают тепло и защищенность, а светлые интерьеры наполнены теплом. Продуманная планировка делает пространство функциональным и удобным для повседневной жизни. Здесь гармонично сочетаются традиции и современный комфорт.Характеристики
- Общая площадь: 78 м2
- Жилая площадь: 61 м2
- Количество этажей: 2
- Гараж: нет
- Высота дома: 7 м
- Площадь кровли: 83 м2
- Отделка: Без отделки
- Фундамент: Дома со свайным фундаментом
Материалы и перечень работ
- Фундамент ж/б выполняется после проведения геологических изысканий почвы , на его основании подбирается сечение и размер свай.
- Предварительно проводим подготовку почвы , делаем разметку участка, «посадку» дома на участке и определяем пятно застройки, в соответствии с солнечной инсталляцией и сторонам света, соседним постройкам.
- Абсолютная экологичность - дом внутри наполнен хвойными ингаляциями - каркас полностью видовой, из хвойных пород дерева - клееная балка 90х230, выполняющая несущие и декоративные видовые функции. Зашивка вагонкой Сорт АВ.
- Стропильная система выдержит любые снеговые и ветровые нагрузки: дом вполне подойдет для любого климата , даже в суровых снеговых и ветреных регионах!
- Стропильная доска камерной сушки, 200мм., балки перекрытия камерной сушки, 200мм. - для прочности и надежности!
- Утепление кровли 250мм., Paroc, мембрана и пароизоляционные пленки Finka. Покрытие кровли - профлист, «Антрацит».
- Большие панорамные окна, открывающие прекрасный вид на ближайший лес или озеро, прямо из спальни - профиль 70мм., энергосбережение и москитные сетки.
- Предусмотрено поворотное и откидное открывание для удобства использования, 2х камерный стеклопакет , 3 стекла. Заполнение камер аргоном для максимальной теплозащиты.
- Не предусмотрена
- Дом по каркасной технологии, но без «болезни» каркасных домов - технологичное решение вопроса по утеплению стен - PIR- утепление 100мм снаружи - с зашивкой профлист, модный цвет «Антрацит».
- Возможность скорректировать решение по назначению помещений после возведения дома - внутренние перегородки устанавливаются на втором этапе: используется сухой строганый брус в виде каркаса внутренних стен.
- Фундамент ж/б выполняется после проведения геологических изысканий почвы , на его основании подбирается сечение и размер свай.
- Предварительно проводим подготовку почвы , делаем разметку участка, «посадку» дома на участке и определяем пятно застройки, в соответствии с солнечной инсталляцией и сторонам света, соседним постройкам.
- Абсолютная экологичность - дом внутри наполнен хвойными ингаляциями - каркас полностью видовой, из хвойных пород дерева - клееная балка 90х230, выполняющая несущие и декоративные видовые функции. Зашивка вагонкой Сорт АВ.
- Стропильная система выдержит любые снеговые и ветровые нагрузки: дом вполне подойдет для любого климата , даже в суровых снеговых и ветреных регионах!
- Стропильная доска камерной сушки, 200мм., балки перекрытия камерной сушки, 200мм. - для прочности и надежности!
- Утепление кровли 250мм., Paroc, мембрана и пароизоляционные пленки Finka. Покрытие кровли - профлист, «Антрацит».
- Большие панорамные окна, открывающие прекрасный вид на ближайший лес или озеро, прямо из спальни - профиль 70мм., энергосбережение и москитные сетки.
- Предусмотрено поворотное и откидное открывание для удобства использования, 2х камерный стеклопакет , 3 стекла. Заполнение камер аргоном для максимальной теплозащиты.
- Не предусмотрена
- Дом по каркасной технологии, но без «болезни» каркасных домов - технологичное решение вопроса по утеплению стен - PIR- утепление 100мм снаружи - с зашивкой профлист, модный цвет «Антрацит».
- Возможность скорректировать решение по назначению помещений после возведения дома - внутренние перегородки устанавливаются на втором этапе: используется сухой строганый брус в виде каркаса внутренних стен.
Что еще входит в стоимость:
Отправьте свои контакты и мы расчитаем вам смету
Скорее всего вам подойдут следующие проекты домов:
Проект двухэтажного дома H-115-1.5D
Семья с одним ребенком
Дом подходит для:
Дом подходит для:
Проект двухэтажного дома БД-100
Семья с двумя детьми
Дом подходит для:
Дом подходит для:
Проект двухэтажного дома БарнХаус 3
Семья с двумя детьми
Дом подходит для:
Дом подходит для:








