Проект двухэтажного дома Брусовой дом 15 (МАКСИ)
Площадь
159 м 2
Размер дома:
12x14
Этажей:
2
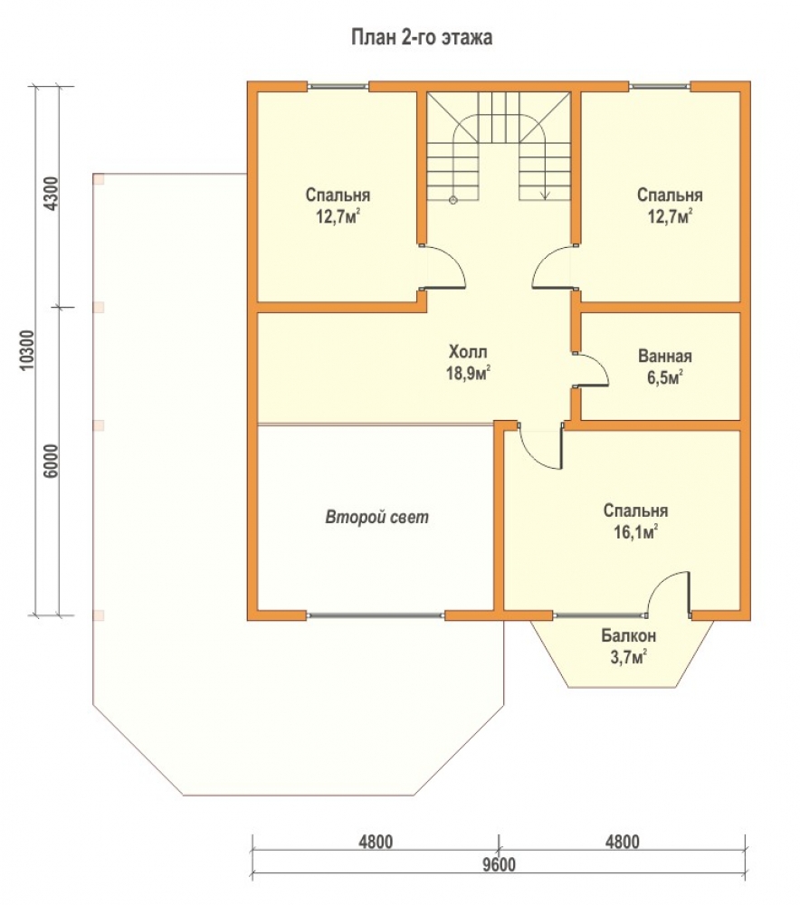
Спален:
4
Санузел:
0
Гараж:
Нет
Баня:
Нет
Терраса:
Нет
Панорамные окна:
Нет
Мастер-спальня:
Нет
О проекте
Проект, с равномерным отоплением. В этих 159 м² легко найти место себе и близким. Стены из Брус хорошо держат тепло и защищают от шума. Материал кровли — рубероид, что добавляет зданию индивидуальность. Архитектура выполнена в стиле дома в классическом стиле.Характеристики
- Общая площадь: 159 м2
- Количество этажей: 2
- Стиль, разновидность: Дома в ином стиле
- Форма: Прямоугольные дома
- Тип кровли: Дома с шатровой крышей
- Отделка: Без отделки
- Размер: 12x14
Отправьте свои контакты и мы расчитаем вам смету
Скорее всего вам подойдут следующие проекты домов:
Дом подходит для:
Дом подходит для:










