Заказать дома 170 кв.м
Проект двухэтажного дома 03-74
Семья с двумя детьми
Дом подходит для:
Дом подходит для:
Проект двухэтажного дома 03-45
Для большой семьи
Дом подходит для:
Дом подходит для:
Проект двухэтажного дома Голубой рассвет
Семья с двумя детьми
Дом подходит для:
Дом подходит для:
Проект двухэтажного дома Исаково
Семья с одним ребенком
Дом подходит для:
Дом подходит для:
Дом подходит для:
Дом подходит для:
Проект двухэтажного дома Ранчо
Для большой семьи
Дом подходит для:
Дом подходит для:
Проект двухэтажного дома Вилла
Для большой семьи
Дом подходит для:
Дом подходит для:
Дом подходит для:
Дом подходит для:
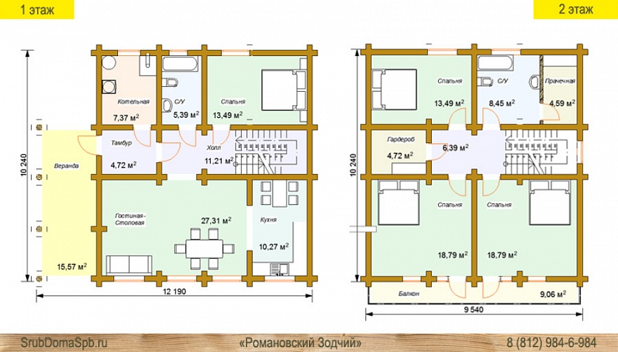
Проект двухэтажного дома СКПП-170
Для большой семьи
Дом подходит для:
Дом подходит для:
Проект двухэтажного дома Альпийский, под ключ, ламинат, Экошпон, Hauberk, коммуникации, сантехника, потолки 3м
Для большой семьи
Дом подходит для:
Дом подходит для:
Проект двухэтажного дома Ред Д-030-87
Семья с двумя детьми
Дом подходит для:
Дом подходит для:
Дом подходит для:
Дом подходит для:
Дом подходит для:
Дом подходит для:
Дом подходит для:
Проект двухэтажного дома Дом id-94864
Семья с двумя детьми
Дом подходит для:
Дом подходит для:
Дом подходит для:
О проектах домов
Примеры готовых проектов помогут в выборе строительной компании. Внимательно изучите проект понравившегося дома, ознакомьтесь с отзывами о компании, отправьте заявку на расчет сметы.
На сайте stroiman.ru собраны только надежные подрядчики по строительству и отделке домов. Каждая компания прошла проверку на юридическую чистоту и качество выполненных заказов.






















































































