Проект двухэтажного дома HI-TECH WOOD
Дом подходит для:
Площадь
167 м 2
Размер дома:
12,4 х 9,4 х 7,5
Этажей:
2
Спален:
3
Санузел:
2
Гараж:
Нет
Баня:
Нет
Терраса:
Нет
Панорамные окна:
Нет
Мастер-спальня:
Нет
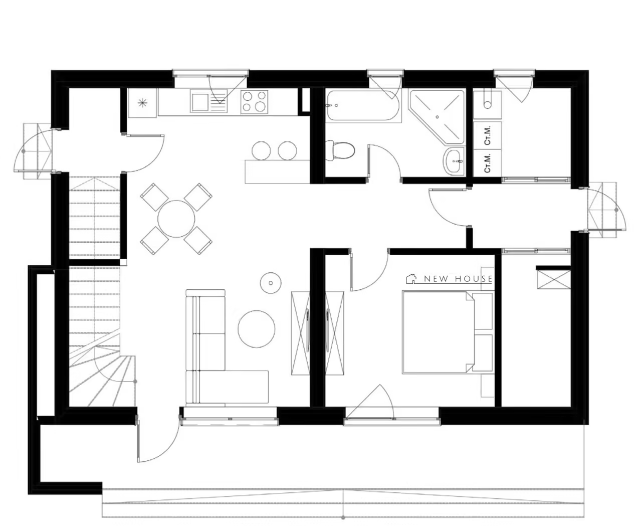
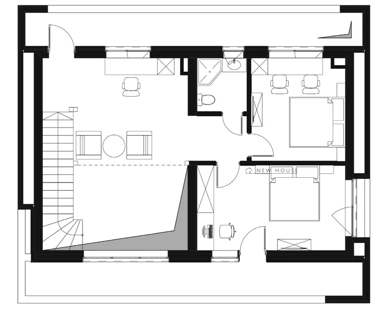
Планировка
Характеристики
- Общая площадь: 167 м2
- Жилая площадь: 122 м2
- Количество этажей: 2
- Гараж: нет
- Площадь кровли: 172 м2
- Отделка: Без отделки
Материалы и перечень работ
- В зависимости от почвы
- ЗАВОДСКОЙ КОМПЛЕКТ КАРКАСА PRECUT из усиленных двутавровых балок со стойками из бруса камерной сушки и ребром жёсткости из ОСП-3 12 мм, обшитый МДВП Белтермо ТОП 25 мм "шип-паз"
- ЦОКОЛЬНОЕ ПЕРЕКРЫТИЕ из БДКУ, подшив оцинкованной сеткой
- ЧЕРНОВОЙ ПОЛ ПЕРЕКРЫТИЙ цокольного и межэтажного - ЦСП 16/20 мм
- КРОВЛЯ ПВХ мембрана Техно-НИКОЛЬ Logicroof с устройством разуклонки
- ГИДРО-ВЕТРОЗАЩИТА на крыше ветро-влагозащитная супердиффузионная мембрана с проклейкой швов скотчем DELTA
- ОКНА И ДВЕРИ системы из 6-камерного бельгийского ПВХ профиля Deceuninck Favorit Space 76 мм с трехконтурным уплотнением, цветного с обеих сторон, фурнитурой и многофункциональными энергосберегающими 2-камерными стеклопакетами (3 стекла) с заполнением Ar (газ Аргон)
- ВОДОСТОЧНАЯ СИСТЕМА
- УТЕПЛЕНИЕ цокольного перекрытия - 200 мм, внешних стен - 150 мм + МДВП Белтермо ТОП 25 мм "шип-паз", крыши - 250 мм; пароизоляция с проклейкой швов скотчем DELTA
- ЧИСТОВАЯ ОТДЕЛКА ВНЕШНИХ СТЕН - планкен из хвойных пород дерева с заводской покраской или покрытием маслом-воском, цвет натуральный в комбинации с планкеном графитового цвета, аквапанели с декоративной штукатуркой светлого оттенка
- В зависимости от почвы
- ЗАВОДСКОЙ КОМПЛЕКТ КАРКАСА PRECUT из усиленных двутавровых балок со стойками из бруса камерной сушки и ребром жёсткости из ОСП-3 12 мм, обшитый МДВП Белтермо ТОП 25 мм "шип-паз"
- ЦОКОЛЬНОЕ ПЕРЕКРЫТИЕ из БДКУ, подшив оцинкованной сеткой
- ЧЕРНОВОЙ ПОЛ ПЕРЕКРЫТИЙ цокольного и межэтажного - ЦСП 16/20 мм
- КРОВЛЯ ПВХ мембрана Техно-НИКОЛЬ Logicroof с устройством разуклонки
- ГИДРО-ВЕТРОЗАЩИТА на крыше ветро-влагозащитная супердиффузионная мембрана с проклейкой швов скотчем DELTA
- ОКНА И ДВЕРИ системы из 6-камерного бельгийского ПВХ профиля Deceuninck Favorit Space 76 мм с трехконтурным уплотнением, цветного с обеих сторон, фурнитурой и многофункциональными энергосберегающими 2-камерными стеклопакетами (3 стекла) с заполнением Ar (газ Аргон)
- ВОДОСТОЧНАЯ СИСТЕМА
- УТЕПЛЕНИЕ цокольного перекрытия - 200 мм, внешних стен - 150 мм + МДВП Белтермо ТОП 25 мм "шип-паз", крыши - 250 мм; пароизоляция с проклейкой швов скотчем DELTA
- ЧИСТОВАЯ ОТДЕЛКА ВНЕШНИХ СТЕН - планкен из хвойных пород дерева с заводской покраской или покрытием маслом-воском, цвет натуральный в комбинации с планкеном графитового цвета, аквапанели с декоративной штукатуркой светлого оттенка
Что еще входит в стоимость:
Отправьте свои контакты и мы расчитаем вам смету
Скорее всего вам подойдут следующие проекты домов:
Дом подходит для:
Проект двухэтажного дома ДК-160
Семья с двумя детьми
Дом подходит для:
Дом подходит для:
Проект двухэтажного дома Итея-3
Семья с двумя детьми
Дом подходит для:
Дом подходит для:













