Проект двухэтажного дома Итея-3
Дом подходит для:
Площадь
148 м 2
Размер дома:
7,8х11,4
Этажей:
2
Спален:
3
Санузел:
3
Гараж:
Нет
Баня:
Нет
Терраса:
Нет
Панорамные окна:
Нет
Мастер-спальня:
Нет
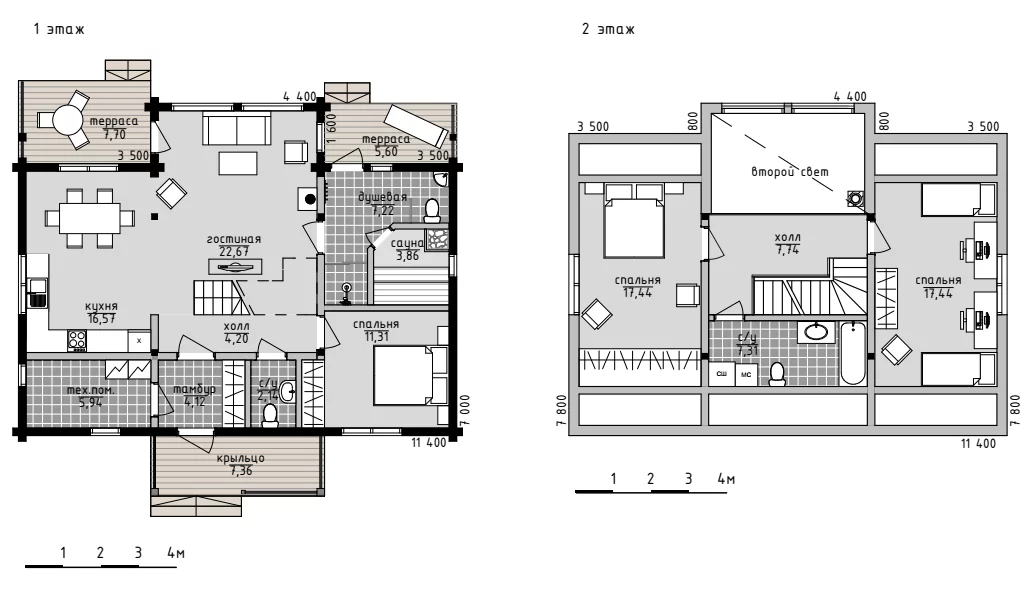
Планировка
Фасады
О проекте
Вместительный дом площадью 148 м² с жилой зоной 127 м² создан для большой семьи. Брусовая конструкция гарантирует надежность и тепло, а продуманная планировка делает пространство функциональным. Светлые интерьеры наполнены уютом, а натуральные материалы добавляют гармонии. Здесь каждый день приносит радость.Характеристики
- Общая площадь: 148 м2
- Жилая площадь: 127 м2
- Количество этажей: 2
- Гараж: нет
- Площадь кровли: 154 м2
- Отделка: Под ключ
- Фундамент: Дома с плитным фундаментом
Материалы и перечень работ
- Монолинтая железобетонная плита 250 мм (Арматурный каркас (диаметр 6, 12 мм) / Бетон В25 (М350) сертифицированный;
- Гидроизоляция;
- Песчаная подушка (h 200 мм) с послойным тромбованием;
- Разделяющий слой из геотекстиля;
- Наружные стены: клееный брус финский профиль 200х240h;
- Клееные несущие балки и опорные столбы;
- Конструкции перекрытия межэтажного и террас;
- Несущие элементы кровли (стропильная система, контробрешетка, обрешетка);
- Каркасы межкомнатных перегородок;
- Кликфальц Grand Line Pro 0,45 Drap;
- Водосточная система;
- Вентиляционные выходы;
- Утепление кровли 300 мм эко вата.
- Деревянные евро окна и наружные двери (толщина коробки - 78мм, тройное остекление);
- Безрамное остекление (по проекту).
- Разводка канализации и закладные под коммуникации.
- Карнизная доска и обрамление проемов снаружи.
- Монолинтая железобетонная плита 250 мм (Арматурный каркас (диаметр 6, 12 мм) / Бетон В25 (М350) сертифицированный;
- Гидроизоляция;
- Песчаная подушка (h 200 мм) с послойным тромбованием;
- Разделяющий слой из геотекстиля;
- Наружные стены: клееный брус финский профиль 200х240h;
- Клееные несущие балки и опорные столбы;
- Конструкции перекрытия межэтажного и террас;
- Несущие элементы кровли (стропильная система, контробрешетка, обрешетка);
- Каркасы межкомнатных перегородок;
- Кликфальц Grand Line Pro 0,45 Drap;
- Водосточная система;
- Вентиляционные выходы;
- Утепление кровли 300 мм эко вата.
- Деревянные евро окна и наружные двери (толщина коробки - 78мм, тройное остекление);
- Безрамное остекление (по проекту).
- Разводка канализации и закладные под коммуникации.
- Карнизная доска и обрамление проемов снаружи.
Что еще входит в стоимость:
Отправьте свои контакты и мы расчитаем вам смету
Скорее всего вам подойдут следующие проекты домов:
Проект двухэтажного дома ДК-160
Семья с двумя детьми
Дом подходит для:
Дом подходит для:
Проект двухэтажного дома HI-TECH WOOD
Семья с двумя детьми
Дом подходит для:
Дом подходит для:












