Проект одноэтажного дома D147-1
Дом подходит для:
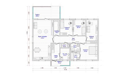
Площадь
173 м 2
Размер дома:
15х14
Этажей:
1
Спален:
4
Санузел:
3
Гараж:
Нет
Баня:
Нет
Терраса:
Нет
Панорамные окна:
Нет
Мастер-спальня:
Нет
Планировка
Характеристики
- Общая площадь: 173 м2
- Жилая площадь: 134 м2
- Количество этажей: 1
- Гараж: нет
- Площадь кровли: 177 м2
- Отделка: Без отделки
- Фундамент: Дома со свайным фундаментом
Материалы и перечень работ
- Фундамент на винтовых металлических сваях.
- Обвязка составным брусом из строганной доски камерной сушки.
- Закладные для ввода воды и электричества.
- Каркас в соответствии с СП 31-105, из строганой доски камерной сушки: стены - 45х140 мм;
- Перекрытия - 45х190 мм.
- Мембраны и пароизоляция ТЕХНОНИКОЛЬ
- Прооклейка стыков пароизоляции лентой DELTA MULTI-BAND
- Стропильная система из строганной доски камерной сушки 45х140мм
- Покрытие металлочерепицей Grand Line 0,5 мм
- ПВХ Rehau окна, 60мм (3 стекла)
- Дверь металлическая, Россия
- В стоимость не входит
- Стены: имитация бруса/виниловый сайдинг
- Потолки террасы/крыльца, свес крыши: евровагонка/софиты
- Фундамент на винтовых металлических сваях.
- Обвязка составным брусом из строганной доски камерной сушки.
- Закладные для ввода воды и электричества.
- Каркас в соответствии с СП 31-105, из строганой доски камерной сушки: стены - 45х140 мм;
- Перекрытия - 45х190 мм.
- Мембраны и пароизоляция ТЕХНОНИКОЛЬ
- Прооклейка стыков пароизоляции лентой DELTA MULTI-BAND
- Стропильная система из строганной доски камерной сушки 45х140мм
- Покрытие металлочерепицей Grand Line 0,5 мм
- ПВХ Rehau окна, 60мм (3 стекла)
- Дверь металлическая, Россия
- В стоимость не входит
- Стены: имитация бруса/виниловый сайдинг
- Потолки террасы/крыльца, свес крыши: евровагонка/софиты
Что еще входит в стоимость:
Отправьте свои контакты и мы расчитаем вам смету
Скорее всего вам подойдут следующие проекты домов:
Проект одноэтажного дома Изумруд, под ключ, ламинат, двери Экошпон, отделка Hauberk, коммуникации, сантехника.
Семья с двумя детьми
Дом подходит для:
Дом подходит для:
Проект одноэтажного дома София
Семья с одним ребенком
Дом подходит для:
Дом подходит для:
Проект одноэтажного дома Эри
Семья с двумя детьми
Дом подходит для:
Дом подходит для:

















