Проект двухэтажного дома Ладога
Дом подходит для:
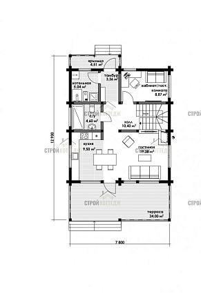
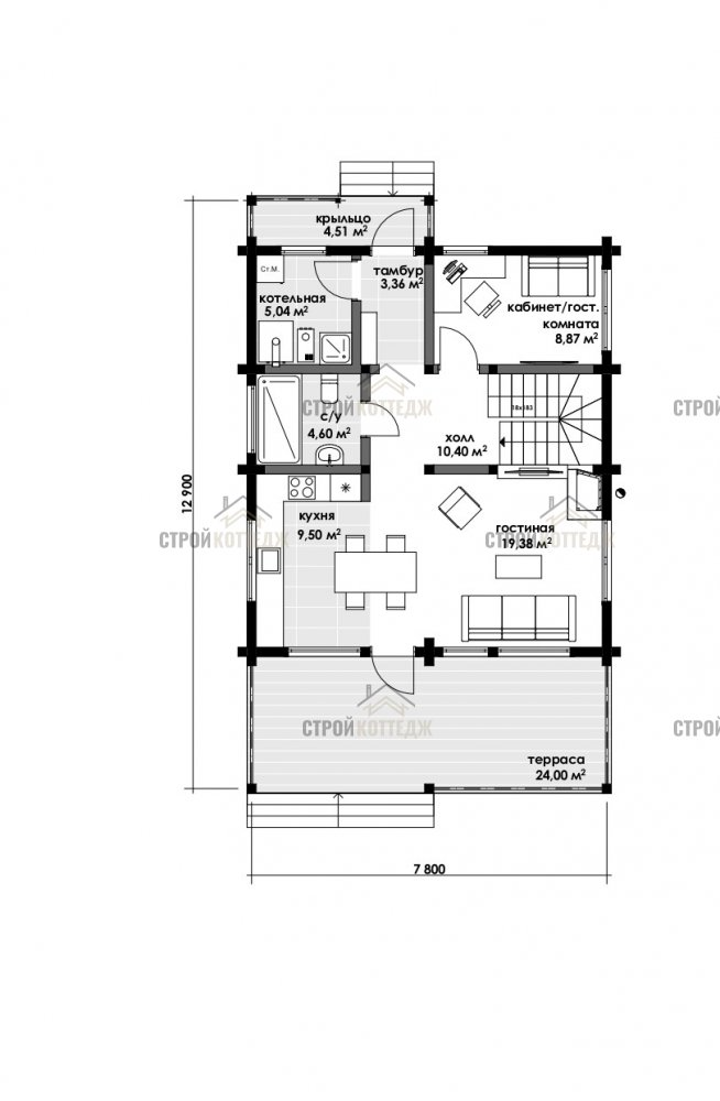
Площадь
173 м 2
Размер дома:
12,98х7,8
Этажей:
2
Спален:
3
Санузел:
2
Гараж:
Нет
Баня:
Нет
Терраса:
Нет
Панорамные окна:
Нет
Мастер-спальня:
Нет
Планировка
Характеристики
- Общая площадь: 173 м2
- Жилая площадь: 143 м2
- Количество этажей: 2
- Гараж: нет
- Площадь кровли: 177 м2
- Отделка: Без отделки
- Фундамент: Дома с железобетонным свайным фундаментом
Материалы и перечень работ
- Сваи 150х150х3000мм
- Геодезические работы: разбивка осей, нивелировка, привязка дома на участке;
- Земляные работы; Разметка фундамента под проект
- Все расходные и сопутствующие материалы необходимые для установки сваи включено;
- Стены - клееный брус 200х185 (h) мм отборный лес 1 сорта (сосна-ель) на выбор;
- Клей - Akzo Nobel (Швеция);
- Монтаж стен бруса на оцинкованный крепеж, межвенцовые соединения пружинный узел силы Tedwood)
- Установка компенсаторов (винтовая опора);
- Установка и разборка лесов;
- Стропильная конструкция из доски 45х195 мм;
- Металлочерепица классик 0,5, цвет на выбор;
- Утепление кровли 250 мм «внахлест» Rockwool (Финляндия);
- Пленки паро-гидроизоляции (Европа);
- Система обрешетки / контробрешетки 25х100, 50х50 мм;
- 2-ух камерный стеклопакет REHAU 60 мм (Германия);
- Двухконтурное уплотнение черного цвета;
- Полноценная обсадная коробка, гидроизоляция
- Усиленное армирование 1,5 мм;
- Двери входные, металлические согласно проекту;
- В стоимость не входит
- Все расходные и сопутствующие материалы необходимые для сборки стенового комплекта;
- Сваи 150х150х3000мм
- Геодезические работы: разбивка осей, нивелировка, привязка дома на участке;
- Земляные работы; Разметка фундамента под проект
- Все расходные и сопутствующие материалы необходимые для установки сваи включено;
- Стены - клееный брус 200х185 (h) мм отборный лес 1 сорта (сосна-ель) на выбор;
- Клей - Akzo Nobel (Швеция);
- Монтаж стен бруса на оцинкованный крепеж, межвенцовые соединения пружинный узел силы Tedwood)
- Установка компенсаторов (винтовая опора);
- Установка и разборка лесов;
- Стропильная конструкция из доски 45х195 мм;
- Металлочерепица классик 0,5, цвет на выбор;
- Утепление кровли 250 мм «внахлест» Rockwool (Финляндия);
- Пленки паро-гидроизоляции (Европа);
- Система обрешетки / контробрешетки 25х100, 50х50 мм;
- 2-ух камерный стеклопакет REHAU 60 мм (Германия);
- Двухконтурное уплотнение черного цвета;
- Полноценная обсадная коробка, гидроизоляция
- Усиленное армирование 1,5 мм;
- Двери входные, металлические согласно проекту;
- В стоимость не входит
- Все расходные и сопутствующие материалы необходимые для сборки стенового комплекта;
Что еще входит в стоимость:
Отправьте свои контакты и мы расчитаем вам смету
Скорее всего вам подойдут следующие проекты домов:
Дом подходит для:
Дом подходит для:
Дом подходит для:











