Проект двухэтажного дома BS-19-1
Дом подходит для:
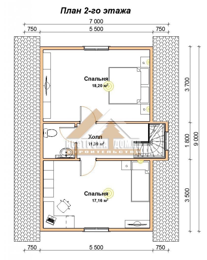
Площадь
111 м 2
Размер дома:
7х9
Этажей:
2
Спален:
3
Санузел:
2
Гараж:
Нет
Баня:
Нет
Терраса:
Нет
Панорамные окна:
Нет
Мастер-спальня:
Нет
Планировка
Характеристики
- Общая площадь: 111 м2
- Жилая площадь: 87 м2
- Количество этажей: 2
- Гараж: нет
- Площадь кровли: 116 м2
- Отделка: Без отделки
Материалы и перечень работ
- В стоимость не входит
- Материал основных стен дома: Обрезной брус 150х150 мм
- Материал внутренних стен дома 1-го этажа: Обрезной брус 100х150 мм
- Материал внутренних стен дома 2-го этажа: Каркасно-щитовые (в стоимость строительства не входят)
- Половые и потолочные балки (лаги): Брус 100х150 мм через 600 мм
- Черновые полы 1-го этажа сплошные: Доска обрезная 25х100-150 мм
- Стропильная конструкция (стропила, ригеля, стойки): Доска обрезная 50х150 мм через 600 мм
- Обрешетка крыши: Доска обрезная 25х100-150 мм через 150-200 мм
- Фронтоны крыши: Имитация бруса камерной сушки 20х140 мм по каркасу 50х150 мм
- Кровля: рубероид
- В стоимость не входит
- В стоимость не входит
- В стоимость не входит
- В стоимость не входит
- Материал основных стен дома: Обрезной брус 150х150 мм
- Материал внутренних стен дома 1-го этажа: Обрезной брус 100х150 мм
- Материал внутренних стен дома 2-го этажа: Каркасно-щитовые (в стоимость строительства не входят)
- Половые и потолочные балки (лаги): Брус 100х150 мм через 600 мм
- Черновые полы 1-го этажа сплошные: Доска обрезная 25х100-150 мм
- Стропильная конструкция (стропила, ригеля, стойки): Доска обрезная 50х150 мм через 600 мм
- Обрешетка крыши: Доска обрезная 25х100-150 мм через 150-200 мм
- Фронтоны крыши: Имитация бруса камерной сушки 20х140 мм по каркасу 50х150 мм
- Кровля: рубероид
- В стоимость не входит
- В стоимость не входит
- В стоимость не входит
Что еще входит в стоимость:
Отправьте свои контакты и мы расчитаем вам смету
Скорее всего вам подойдут следующие проекты домов:
Дом подходит для:
Дом подходит для:
Дом подходит для:











