Проект двухэтажного дома БУ--23
Площадь
156 м 2
Размер дома:
10x11
Этажей:
2
Спален:
3
Санузел:
0
Гараж:
Нет
Баня:
Нет
Терраса:
Нет
Панорамные окна:
Нет
Мастер-спальня:
Нет
О проекте
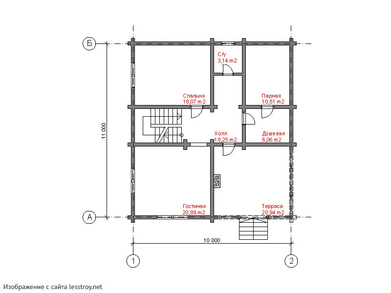
Дом, где дверные ручки - это не только дизайн, но и удобство Дом с 156 м² — отличное начало для загородной жизни. Брус делает дом надёжным при любой погоде. Двухэтажная грамотная планировка разделяет приватные и общественные зоны. Наличие 3 спальни удовлетворит запросы семьи с детьми.Характеристики
- Общая площадь: 156 м2
- Количество этажей: 2
- Стиль, разновидность: Дома в стиле Русский
- Форма: Прямоугольные дома
- Тип кровли: Дома с мансардной крышей
- Отделка: Без отделки
- Размер: 10x11
Отправьте свои контакты и мы расчитаем вам смету
Скорее всего вам подойдут следующие проекты домов:
Дом подходит для:
Проект двухэтажного дома Дом из профилированного бруса сечением 190*120
Семья с двумя детьми
Дом подходит для:
Дом подходит для:
Проект двухэтажного дома Дом из клееного бруса с террасой и балконом. Проект Светово.
Для большой семьи
Дом подходит для:
Дом подходит для:











