Проект двухэтажного дома Бутурлино
Площадь
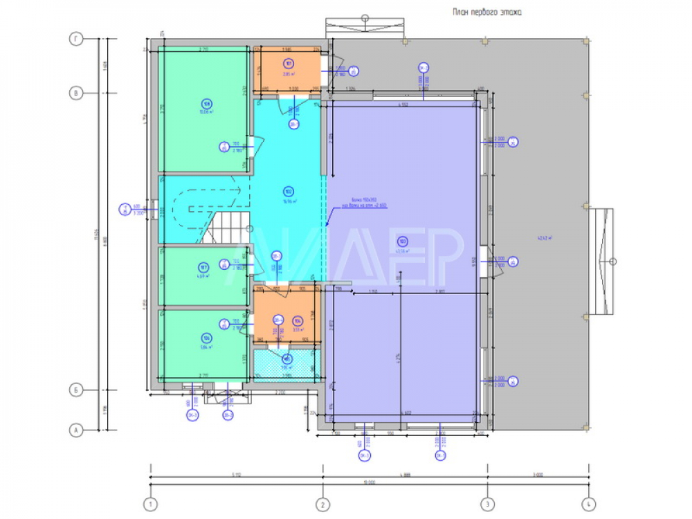
173 м 2
Размер дома:
11x13
Этажей:
2
Спален:
4
Санузел:
0
Гараж:
Нет
Баня:
Нет
Терраса:
Нет
Панорамные окна:
Нет
Мастер-спальня:
Нет
О проекте
Архитектура, которая делает жильцов немного счастливее каждый день. 173 м² открывают свободу для жизни без компромиссов. В доме предусмотрено 4 спальни, что важно для комфорта. Двухэтажная эргономичная планировка обеспечивает комфортную навигацию внутри дома. Дом спроектирован в духе дома в классическом стиле.Характеристики
- Общая площадь: 173 м2
- Количество этажей: 2
- Стиль, разновидность: Дома в ином стиле
- Форма: Прямоугольные дома
- Тип кровли: Дома с четырехскатной крышей (вальмовой)
- Отделка: Без отделки
- Размер: 11x13
Отправьте свои контакты и мы расчитаем вам смету
Скорее всего вам подойдут следующие проекты домов:
Дом подходит для:
Дом подходит для:
Дом подходит для:













