Проект одноэтажного дома CLT’DOM 145
Дом подходит для:
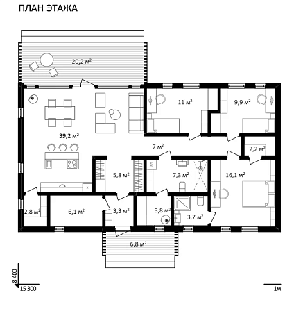
Площадь
145 м 2
Размер дома:
15,3х8,4
Этажей:
1
Спален:
3
Санузел:
2
Гараж:
Нет
Баня:
Нет
Терраса:
Нет
Панорамные окна:
Нет
Мастер-спальня:
Нет
Планировка
Фасады
О проекте
Вместительный дом площадью 145 м² с 118 м² жилого пространства идеален для тех, кто ценит простор и комфорт. Каркасная конструкция обеспечивает надежность, а продуманная планировка создает ощущение свободы. Светлые интерьеры и натуральные материалы добавляют тепла и уюта. Это дом, где каждая деталь продумана для вашего удобства.Характеристики
- Общая площадь: 145 м2
- Жилая площадь: 118 м2
- Количество этажей: 1
- Гараж: нет
- Площадь кровли: 151 м2
- Отделка: White box
- Фундамент: Дома с плитным фундаментом
Материалы и перечень работ
- Монолинтая железобетонная плита 250 мм (Арматурный каркас (диаметр 6, 12 мм) / Бетон В25 (М350) сертифицированный;
- Гидроизоляция;
- Песчаная подушка (h 200 мм) с послойным тромбованием;
- Разделяющий слой из геотекстиля;
- Наружные стены: CLT - панель из перекрестно-клеенной древесины 100 мм + силовой каркас для внешнего утепления 140 мм;
- Клееные несущие балки и опорные столбы;
- Конструкции перекрытия межэтажного и террас;
- Несущие элементы кровли (стропильная система, контробрешетка, обрешетка);
- Каркасы межкомнатных перегородок;
- Кликфальц Grand Line Pro 0,45 Drap;
- Водосточная система;
- Вентиляционные выходы;
- Утепление кровли 300 мм эко вата.
- Деревянные евро окна и наружные двери (толщина коробки - 78мм, тройное остекление);
- Безрамное остекление (по проекту).
- Разводка канализации и закладные под коммуникации.
- Деревянная фасадная доска, сорт АВ;
- Карнизная доска и обрамление проемов снаружи.
- Монолинтая железобетонная плита 250 мм (Арматурный каркас (диаметр 6, 12 мм) / Бетон В25 (М350) сертифицированный;
- Гидроизоляция;
- Песчаная подушка (h 200 мм) с послойным тромбованием;
- Разделяющий слой из геотекстиля;
- Наружные стены: CLT - панель из перекрестно-клеенной древесины 100 мм + силовой каркас для внешнего утепления 140 мм;
- Клееные несущие балки и опорные столбы;
- Конструкции перекрытия межэтажного и террас;
- Несущие элементы кровли (стропильная система, контробрешетка, обрешетка);
- Каркасы межкомнатных перегородок;
- Кликфальц Grand Line Pro 0,45 Drap;
- Водосточная система;
- Вентиляционные выходы;
- Утепление кровли 300 мм эко вата.
- Деревянные евро окна и наружные двери (толщина коробки - 78мм, тройное остекление);
- Безрамное остекление (по проекту).
- Разводка канализации и закладные под коммуникации.
- Деревянная фасадная доска, сорт АВ;
- Карнизная доска и обрамление проемов снаружи.
Что еще входит в стоимость:
Отправьте свои контакты и мы расчитаем вам смету
Скорее всего вам подойдут следующие проекты домов:
Дом подходит для:
Дом подходит для:
Проект одноэтажного дома CLT'DOM 139
Семья с двумя детьми
Дом подходит для:
Дом подходит для:











