Проект двухэтажного дома Д-15
Площадь
81 м 2
Размер дома:
6x9
Этажей:
2
Спален:
3
Санузел:
1
Гараж:
Нет
Баня:
Нет
Терраса:
Да
Панорамные окна:
Нет
Мастер-спальня:
Нет
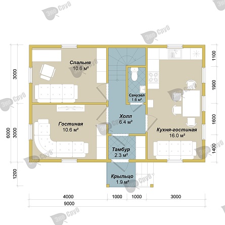
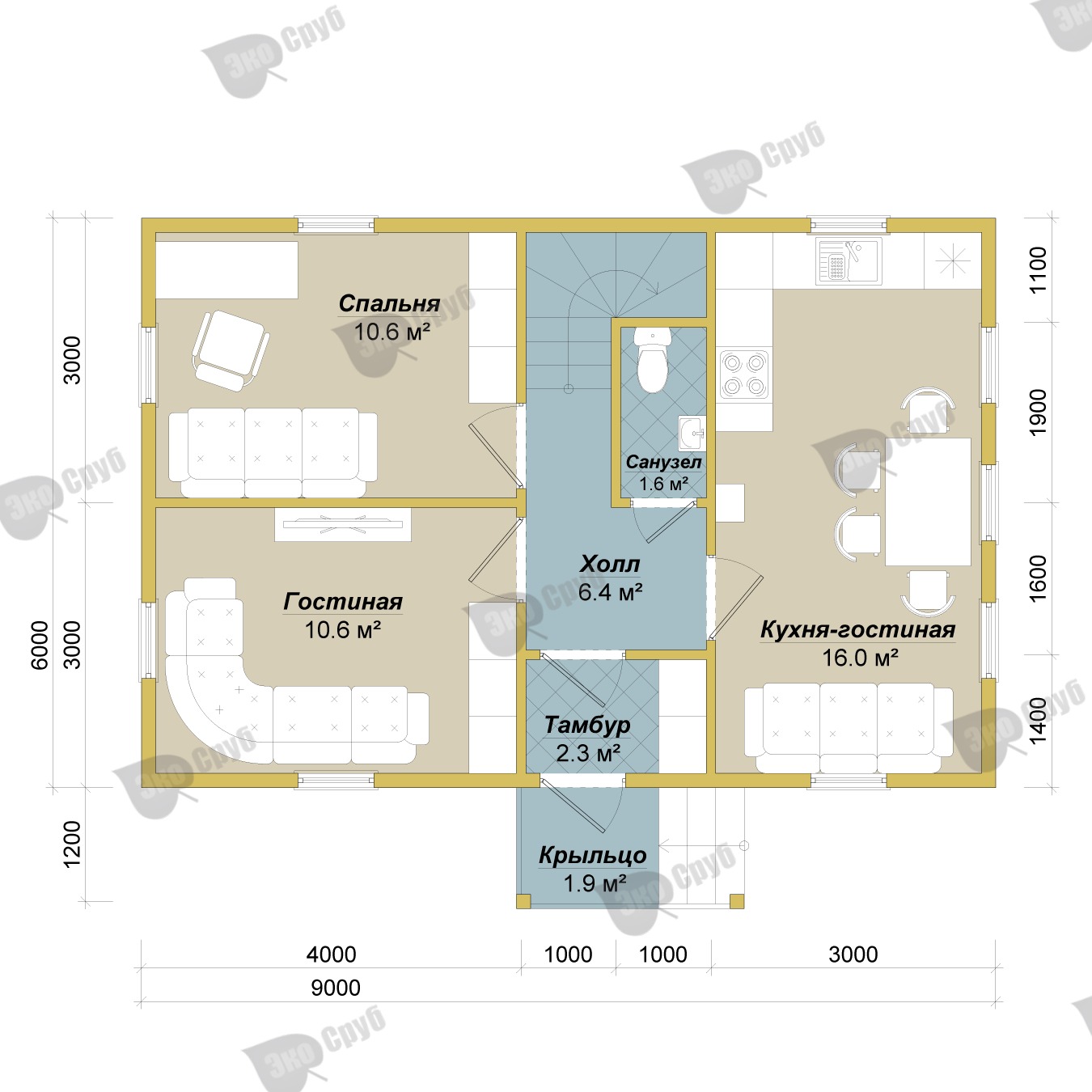
Планировка
Характеристики
- Общая площадь: 81 м2
- Жилая площадь: 60 м2
- Количество этажей: 2
- Гараж: нет
- Площадь кровли: 88 м2
- Форма: Квадратные дома
- Тип кровли: Дома с многощипцовой крышей
- Пристрой: Дома с верандой
- Отделка: Без отделки
- Размер: 6x9
Материалы и перечень работ
- В стоимость не входит
- Соединение углов в теплый угол (ласточкин хвост).
- Венцы скрепляются деревянными нагелями, в шахматном порядке.
- Перегородки 1 этаж – брус ест. влажности 150х100 мм., примыкание к внешним стенам «Ласточкин хвост».
- Балки пола и потолка – брус ест. влажности 100х150 мм., с шагом – 590 мм.
- Фронтоны – доска ест. влажности 25х150 мм.
- Стропила – доска ест. влажности 50х150 мм., с шагом – 590 мм.
- Обрешетка – доска ест. влажности 25х150(100) мм.
- Подлёты и карнизы – 500 мм.
- В стоимость не входит
- В стоимость не входит
- В стоимость не входит
- В стоимость не входит
- Соединение углов в теплый угол (ласточкин хвост).
- Венцы скрепляются деревянными нагелями, в шахматном порядке.
- Перегородки 1 этаж – брус ест. влажности 150х100 мм., примыкание к внешним стенам «Ласточкин хвост».
- Балки пола и потолка – брус ест. влажности 100х150 мм., с шагом – 590 мм.
- Фронтоны – доска ест. влажности 25х150 мм.
- Стропила – доска ест. влажности 50х150 мм., с шагом – 590 мм.
- Обрешетка – доска ест. влажности 25х150(100) мм.
- Подлёты и карнизы – 500 мм.
- В стоимость не входит
- В стоимость не входит
- В стоимость не входит
Что еще входит в стоимость:
Отправьте свои контакты и мы расчитаем вам смету
Скорее всего вам подойдут следующие проекты домов:
Проект двухэтажного дома Дом 6х8 м с мансардной крышей и кухней-гостиной
Для большой семьи
Дом подходит для:
Дом подходит для:












