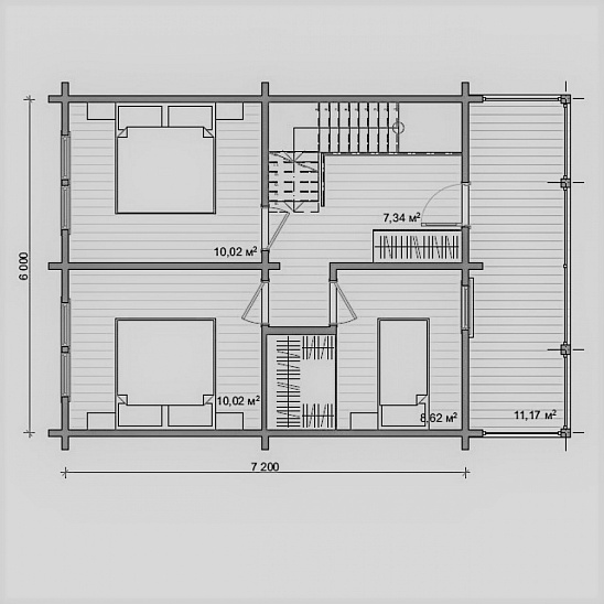
Проект двухэтажного дома Пегас
Площадь
78 м 2
Размер дома:
Этажей:
2
Спален:
2
Санузел:
0
Гараж:
Нет
Баня:
Нет
Терраса:
Нет
Панорамные окна:
Нет
Мастер-спальня:
Нет
О проекте
Пространство, где мебель кажется созданной специально для этого места. 78 м² — дом не теряет индивидуальности. В доме предусмотрено 2 спальни, что важно для комфорта. Двухэтажная удобная планировка делает зонирование более логичным. Брус делает дом надёжным при любой погоде.Характеристики
- Общая площадь: 78 м2
- Количество этажей: 2
- Стиль, разновидность: Дома в ином стиле
- Форма: Прямоугольные дома
- Тип кровли: Дома с мансардной крышей
- Отделка: Без отделки













