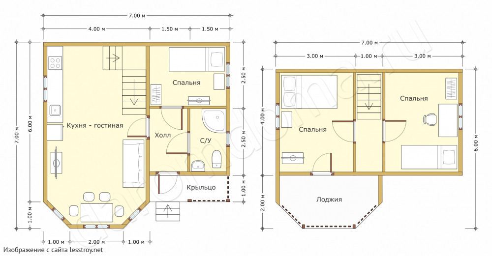
Проект двухэтажного дома Дом 7х7 м с эркером и балконом
Площадь
78 м 2
Размер дома:
7x7
Этажей:
2
Спален:
3
Санузел:
0
Гараж:
Нет
Баня:
Нет
Терраса:
Нет
Панорамные окна:
Нет
Мастер-спальня:
Нет
О проекте
Жилище, созданное для тех, кто любит проводить время дома. Уют, компактность и 78 м² — три кита этого проекта. Архитектура выполнена в стиле дома в стиле русский. Двухэтажная эргономичная планировка делает зонирование более логичным. Брус делает дом надёжным при любой погоде.Характеристики
- Общая площадь: 78 м2
- Количество этажей: 2
- Стиль, разновидность: Дома в стиле Русский
- Форма: Г-образные дома
- Тип кровли: Дома с мансардной крышей
- Отделка: Без отделки
- Размер: 7x7
Отправьте свои контакты и мы расчитаем вам смету
Скорее всего вам подойдут следующие проекты домов:
Проект двухэтажного дома Дом 6х8 м с мансардной крышей и кухней-гостиной
Для большой семьи
Дом подходит для:
Дом подходит для:
Проект двухэтажного дома Проект дома из профилированного бруса 9,0 х 11,0 м «Кипень»
Семья с двумя детьми
Дом подходит для:
Дом подходит для:














