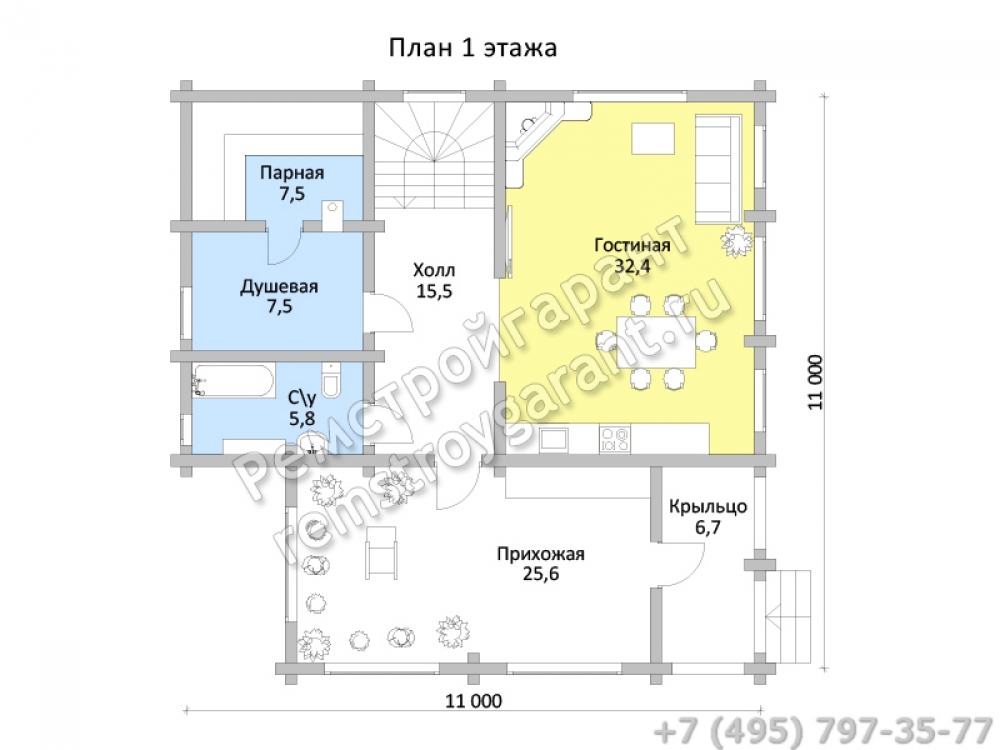
Проект одноэтажного дома Д-195/1
Площадь
195 м 2
Размер дома:
11x11
Этажей:
1
Спален:
4
Санузел:
0
Гараж:
Нет
Баня:
Нет
Терраса:
Нет
Панорамные окна:
Нет
Мастер-спальня:
Нет
О проекте
Проект делает дом модным, но наполненным теплом семейных историй.Дом продуман на 70 м² до последнего сантиметра. Архитектура выполнена в стиле дома в классическом стиле. Материал кровли — рубероид, что добавляет зданию индивидуальность. Стены из бревна хорошо держат тепло и защищают от шума.Характеристики
- Общая площадь: 195 м2
- Количество этажей: 1
- Стиль, разновидность: Дома в ином стиле
- Форма: Прямоугольные дома
- Тип кровли: Дома с иной крышей
- Отделка: Без отделки
- Размер: 11x11
Отправьте свои контакты и мы расчитаем вам смету
Скорее всего вам подойдут следующие проекты домов:
Дом подходит для:
Дом подходит для:
Дом подходит для:












