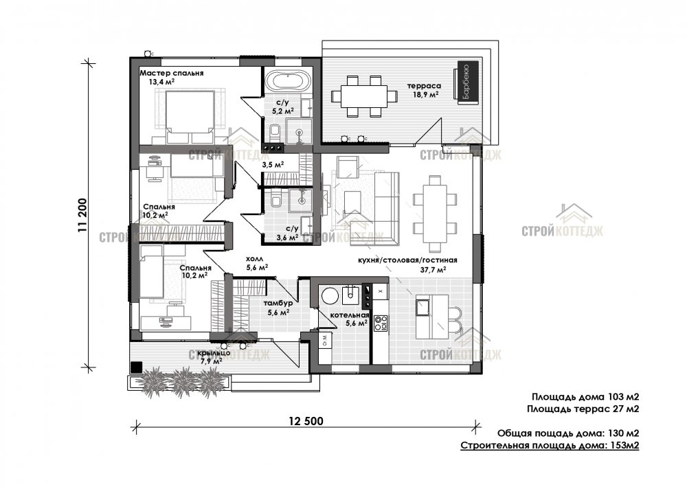
Проект одноэтажного дома Дакота мини из газобетонных блоков
Площадь
153 м 2
Размер дома:
Этажей:
1
Спален:
3
Санузел:
0
Гараж:
Нет
Баня:
Нет
Терраса:
Нет
Панорамные окна:
Нет
Мастер-спальня:
Нет
О проекте
Современный дом площадью 153 м² из газобетона отличается легкостью и энергоэффективностью. Три спальни и просторные помещения делают его комфортным для жизни. Материал стен обеспечивает тепло зимой и прохладу летом. Идеальный вариант для практичных хозяев.Характеристики
- Общая площадь: 153 м2
- Количество этажей: 1
- Стиль, разновидность: Дома в стиле Хай тек
- Форма: Квадратные дома
- Тип кровли: Дома с полувальмовой крышей (полущипцовой)
- Отделка: Без отделки
Отправьте свои контакты и мы расчитаем вам смету
Скорее всего вам подойдут следующие проекты домов:
Проект одноэтажного дома Гранд
Семья с одним ребенком
Дом подходит для:
Дом подходит для:
Проект одноэтажного дома Дом id-119459
Для большой семьи
Дом подходит для:
Дом подходит для:
Проект одноэтажного дома Дом id-114358
Семья с двумя детьми
Дом подходит для:
Дом подходит для:























