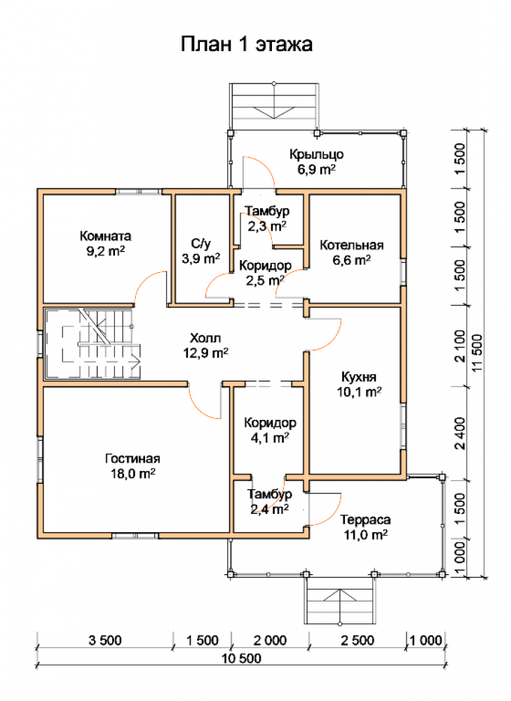
Проект одноэтажного дома дб-107 а
Площадь
143 м 2
Размер дома:
Этажей:
1
Спален:
0
Санузел:
0
Гараж:
Нет
Баня:
Нет
Терраса:
Нет
Панорамные окна:
Нет
Мастер-спальня:
Нет
О проекте
Его облик говорит о том, что эстетика и практичность могут идти рука об руку. Площадь 143 м² — это свобода и контроль одновременно. Материал кровли — рубероид, что добавляет зданию индивидуальность. Брус делает дом надёжным при любой погоде. Архитектура выполнена в стиле дома в классическом стиле.Характеристики
- Общая площадь: 143 м2
- Количество этажей: 1
- Стиль, разновидность: Дома в ином стиле
- Тип кровли: Дома с иной крышей
- Отделка: Без отделки
Отправьте свои контакты и мы расчитаем вам смету
Скорее всего вам подойдут следующие проекты домов:
Проект одноэтажного дома Одноэтажный дом из бруса 12.8х12.4 ДБ-8
Семья с двумя детьми
Дом подходит для:
Дом подходит для:
Дом подходит для:
Дом подходит для:










