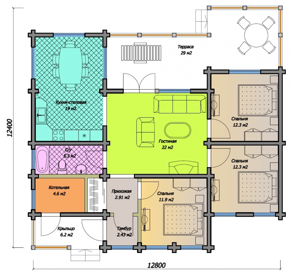
Проект одноэтажного дома Одноэтажный дом из бруса 12.8х12.4 ДБ-8
Площадь
158 м 2
Размер дома:
12x12
Этажей:
1
Спален:
3
Санузел:
0
Гараж:
Нет
Баня:
Нет
Терраса:
Нет
Панорамные окна:
Нет
Мастер-спальня:
Нет
О проекте
Проект, в котором гардеробная достойна модного журнала. 158 м² для удобной и спокойной жизни. Конструкция из Брус обеспечивает прочность и долговечность. В доме предусмотрено 3 спальни, что важно для комфорта. В качестве кровли использована металлочерепица — материал, проверенный временем.Характеристики
- Общая площадь: 158 м2
- Количество этажей: 1
- Стиль, разновидность: Дома в ином стиле
- Форма: Квадратные дома
- Тип кровли: Дома с двускатной крышей
- Отделка: Без отделки
- Размер: 12x12
Отправьте свои контакты и мы расчитаем вам смету
Скорее всего вам подойдут следующие проекты домов:
Дом подходит для:
Дом подходит для:
Дом подходит для:











